home page > Annunci immobiliari in Italia > Veneto > Padova > Conselve > Negozi uffici capannoni in vendita > Scheda immobile

Negozi uffici capannoni in vendita a Conselve

COMPILA IL MODULO SOTTOSTANTE PER RICEVERE MAGGIORI INFORMAZIONI







Invia la richiesta ad altre agenzie
Accetto il trattamento dei miei dati



Empire real estate snc

Via roma 11
35026 Conselve (PD)

3291939979    3481223303    Riferimenti: Empire Real Estate Snc di Andrea Celon e Luca Rizzo

Conselve
Prezzo: € 140.000
E
170
Piano terra



Descrizione:
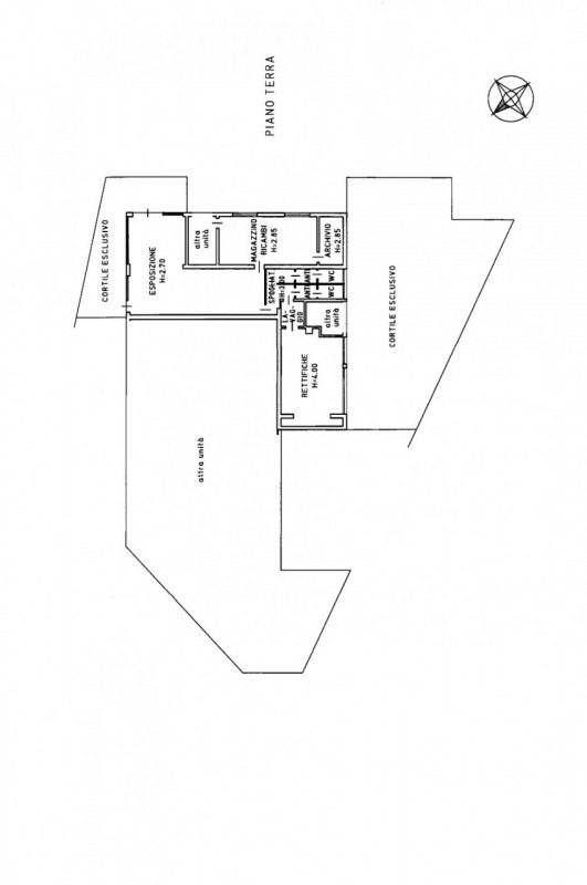
In pieno centro a conselve, in una zona di forte passaggio e con grande visibilità, proponiamo in vendita un immobile commerciale di categoria d7, libero da subito.l'immobile si sviluppa interamente al piano terra e offre spazi ampi e funzionali: una grande area ideale come showroom o esposizione, un magazzino e due vani aggiuntivi di circa 40 mq ciascuno. Le tre vetrine fronte strada garantiscono luminosità e un'eccellente visibilità, valorizzando al meglio la posizione centrale.completano la proprietà un ingresso carraio privato e un parcheggio riservato, caratteristiche sempre più preziose in centro città. Sono presenti anche due bagni finestrati da ristrutturare, che consentono di personalizzare gli ambienti secondo le proprie esigenze.la categoria catastale d7 identifica immobili costruiti o adattati per attività industriali o connesse alla produzione, ma la loro versatilità consente di ospitare numerose tipologie di attività, dall'artigianato all'esposizione commerciale.




Caratteristiche immobile:
Codice inserzione: 1758510689
Rif. Annuncio: Rif. 2
Provincia: Padova
Comune: Conselve
Superficie (Mq) : 170 Mq.
Tipo immobile: Negozi uffici capannoni
Stato immobile: usato
Anno costruzione/ristrutturazione: 1967
Piano: Piano terra

Costi:
Prezzo € 140.000


Efficienza energetica:
Classe energetica: E
Indice di prestazione energetica (EPgl): 144.71 kWh/mc annui