home page > Annunci immobiliari in Italia > Veneto > Padova > Este > Case e ville a schiera in vendita > Scheda immobile

Case e ville a schiera in vendita a Este

COMPILA IL MODULO SOTTOSTANTE PER RICEVERE MAGGIORI INFORMAZIONI







Invia la richiesta ad altre agenzie
Accetto il trattamento dei miei dati



Epos casa

Via desman 221/c
35010 Borgoricco (PD)

0499335858    Riferimenti: Fabiola Scolaro

Este
Prezzo: € 130.000
F
1
1
93
1
1



Descrizione:
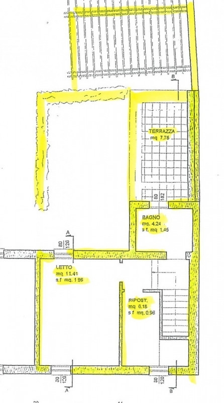
Scopri questa splendida porzione centrale di casa a schiera, situata nella zona centrale di este, una delle località più affascinanti della provincia di padova. Questa proprietà in vendita si estende su una superficie totale di circa 93 mq commerciali ed offre un ingresso indipendente con uno scoperto privato di circa 30 mq, perfetto per godere del sole o organizzare piacevoli momenti all'aperto.la casa è composta da un accogliente ingresso che conduce ad un soggiorno-pranzo con cucina separata, il tutto illuminato da una grande porta vetrata che si apre sul giardino. Al primo piano troverai una camera doppia spaziosa e ben progettata, accompagnata da una stanza ripostiglio finestrata ideale per soddisfare le tue esigenze quotidiane. Il bagno è dotato di doccia ed è finestrato.sull'ampio terrazzo di quasi 8 mq potrai rilassarti e goderti la vista circostante. Completamente ristrutturato nel 2006, questo immobile conserva i soffitti travati a vista in legno che aggiungono calore e carattere agli spazi interni.inoltre, la proprietà include un posto auto coperto di circa 13 mq per garantire comodità al tuo stile di vita.este non solo offre tutti i servizi essenziali come negozi, scuole e trasporti pubblici ma anche numerosi eventi culturali durante l'anno che arricchiscono la vita comunitaria. La posizione strategica ti permette inoltre facili collegamenti verso altre città della regione veneta.non perdere l'opportunità unica di possedere questa incantevole abitazione! contatta subito la nostra agenzia per ulteriori informazioni o per prenotare una visita.




Caratteristiche immobile:
Codice inserzione: 1774409889
Rif. Annuncio: 111 B
Provincia: Padova
Comune: Este
Superficie (Mq) : 93 Mq.
Tipo immobile: Case e ville a schiera
Anno costruzione/ristrutturazione: 1900
Piano: 1
Camere: 1
Posti auto scoperti: 1 posto auto
Bagni: 1
Terrazze: 1

Costi:
Prezzo € 130.000


Efficienza energetica:
Classe energetica: F
Indice di prestazione energetica (EPgl): 232.61 kWh/mq annui
Riscaldamento: autonomo