home page > Annunci immobiliari in Italia > Veneto > Padova > Este > Case e ville indipendenti in vendita > Scheda immobile

Case e ville indipendenti in vendita a Este

COMPILA IL MODULO SOTTOSTANTE PER RICEVERE MAGGIORI INFORMAZIONI







Invia la richiesta ad altre agenzie
Accetto il trattamento dei miei dati



Casa per casa s.r.l.

Via principe umberto 48
35042 Este (PD)

0429604143    Riferimenti: Amministrazione Casapercasa

Este
Prezzo: € 540.000
4
2
240
1



Descrizione:
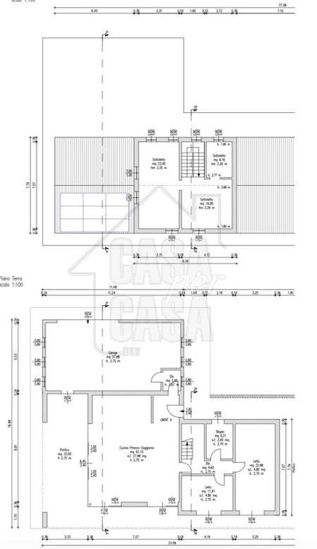
Rif. B236. Ultima porzione di bifamiliare disponibile in costruzione in una posizione ideale ad este, a breve distanza dal centro.la casa verrà costruita utilizzando prodotti di alta qualità e dotata di un isolamento termico a cappotto, applicato sulla superficie esterna delle pareti, che aumenterà notevolmente il valore dell'isolamento e dell'inerzia termica, eliminando i ponti termici e proteggendo la struttura dell'edificio dalle intemperie. Classe energetica stimata a4.disposta su due livelli, al piano terra cucina soggiorno in soluzione open space di circa 60 mq, una camera da letto matrimoniale, una camera da letto doppia ed un bagno.al piano superiore possibilità di ricavare due camere da letto ed un bagno.conclude la proprietà un portico di circa 33 mq dove poter passare momenti di relax con famiglia ed amici ed un garage di circa 57 mq.per maggiori informazioni contattataci presso la nostra agenzia.l'agenzia casa per casa è composta da un team di professionisti che con le competenze più specifiche vi accompagneranno nel percorso di compravendita di un immobile. La tranquillità di essere seguiti in ogni passo e di avere un riferimento per ogni problema vi affiancheranno fino al rogito. Inoltre l'agenzia è in grado di poter espletare pratiche come: valutazioni, preventivi, stime immobiliari, certificazioni energetiche, permute, successioni ect.casa per casa srl via principe umberto, 48 35042 este (pd) cell tel email:




Caratteristiche immobile:
Codice inserzione: 1775097274
Rif. Annuncio: B236
Provincia: Padova
Comune: Este
Superficie (Mq) : 240 Mq.
Tipo immobile: Case e ville indipendenti
Stato immobile: nuovo
Piano: 1
Camere: 4
Garage: Doppio
Bagni: 2

Costi:
Prezzo € 540.000


Efficienza energetica:
Riscaldamento: autonomo a pavimento