home page > Annunci immobiliari in Italia > Veneto > Padova > Este > Negozi uffici capannoni in vendita > Scheda immobile

Negozi uffici capannoni in vendita a Este

COMPILA IL MODULO SOTTOSTANTE PER RICEVERE MAGGIORI INFORMAZIONI







Invia la richiesta ad altre agenzie
Accetto il trattamento dei miei dati



Obiettivo casa

Piazza beata beatrice 7
35042 Este (PD)

042951983    Riferimenti: Gianmaria Mazzetto

Este
Prezzo: € 318.000
D
1
180
Piano terra



Descrizione:
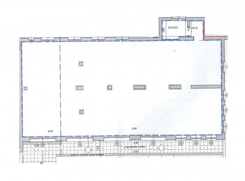
A este, in ottima posizione fronte strada provinciale, proponiamo in vendita per investimento, prestigioso ufficio direzionale di recente ristrutturazione.l'immobile, locato al canone annuo di euro 24.000, è un'ottima opportunità per chi cerca una rendita sicura.sul fronte strada, presenta quattro vetrine, e all'interno, l'ampio locale open-space di circa 180 mq, è stato modulato creando varie postazioni di lavoro e una zona archivo. All'interno dell'ufficio troviamo un bagno con antibagno. Sul fronte dell'immobile sono disponibili vari parcheggi pubblici.l'immobile è locato da diversi anni rendendolo un interessante investimento, ubicato in una zona di forte passaggio veicolare offre la possibilità di raggiungere comodamente tutti i servizi.per informazioni contattare l'agenzia obiettivo casa di este via padana inferiore n. 2 al numero oppure a




Caratteristiche immobile:
Codice inserzione: 1775615584
Rif. Annuncio: UFF 78
Provincia: Padova
Comune: Este
Superficie (Mq) : 180 Mq.
Tipo immobile: Negozi uffici capannoni
Stato immobile: usato
Piano: Piano terra
Bagni: 1

Costi:
Prezzo € 318.000


Efficienza energetica:
Classe energetica: D
Riscaldamento: autonomo