home page > Annunci immobiliari in Italia > Veneto > Padova > Legnaro > Case e ville indipendenti in vendita > Scheda immobile

Case e ville indipendenti in vendita a Legnaro

COMPILA IL MODULO SOTTOSTANTE PER RICEVERE MAGGIORI INFORMAZIONI







Invia la richiesta ad altre agenzie
Accetto il trattamento dei miei dati



Veneto case roncaglia

Via g. Marconi 84
35020 Ponte San Nicolò (PD)

0498961955

Legnaro
Prezzo: € 390.000
A4
3
2
140
Piano terra
1



Descrizione:
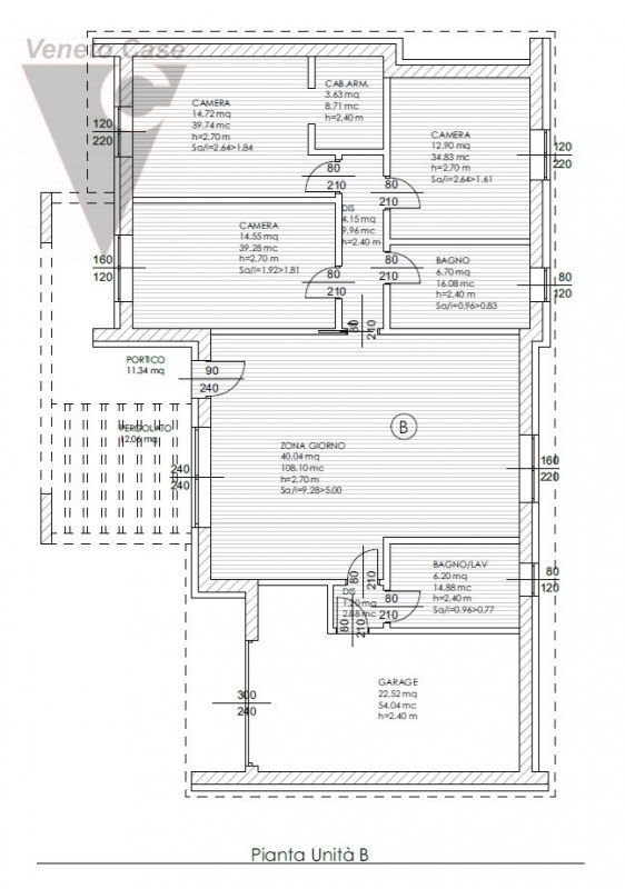
In zona residenziale, circondati dalla campagna legnarese, proponiamo in vendita n. 2 case singole su lotti di circa 700 mq, attualmente in costruzione e sviluppate interamente al pian terreno, caratteristica questa molto ricercata e che fa si che questi immobili siano ideali per ogni tipologia di clientela. La progettazione, inoltre, ha dato rilievo alle nuove metodologie costruttive ed architettoniche per incontrare maggiormente il gradimento delle attuali esigenze e alle recenti tecnologie impiantistiche al fine di rendere il fabbricato performante anche dal punto di vista del fabbisogno energetico e sismico, prevedendo il raggiungimento della classe energetica edifici nzeb. Sotto il profilo distributivo, si è cercato di distribuire gli spazi a disposizione, tenendo conto di tutte le esigenze abitative di una famiglia media, cercando di realizzare ampi vani interni oltre ad un'adeguata sistemazione a verde. Nel dettaglio al proprio interno gli immobili si compongono di ampia zona giorno open space di oltre 46,00 mq dotata di ben 2 vetrate a garantire la massima luminosità con uscita tramite vetrate scorrevoli sul giardino esterno. A seguire 3 spaziose camere, di cui 2 matrimoniali ( + in una casa c'è anche la cabina armadio) ed una singola e 2 bagni entrambi finestrati. Garage 'comodo' di 22,00 mq. Riguardo l'efficientamento energetico gli immobili saranno in classe a4 con le seguenti dotazioni incluse:-ben 8 kw di fotovoltaico (dove trovarli?)-pompa di calore (no gas)-riscaldamento a pavimento-muratura con mattoni a cassero legnobloc (casa clima)- infissi in pvc triplo vetrocamerapossibilità di scelta delle finiture interne. Consegna estate 2026.classe a4 ipe 12,58 kwh/mq annoeuro 390.000,00 - rif l-174veneto case - roncagliaponte san nicolò (pd) - via marconi, vicinanze di padova, ponte san nicolò, legnaro, sant'angelo di piove, polverara, casalserugo, brugine, voltabarozzo, crocefisso, salboro, guizza, albignasego.




Caratteristiche immobile:
Codice inserzione: 1773805439
Rif. Annuncio: L-174
Provincia: Padova
Comune: Legnaro
Superficie (Mq) : 140 Mq.
Tipo immobile: Case e ville indipendenti
Stato immobile: nuovo
Piano: Piano terra
Camere: 3
Garage: Singolo
Posti auto scoperti: 1 posto auto
Bagni: 2

Costi:
Prezzo € 390.000


Efficienza energetica:
Classe energetica: A4
Riscaldamento: autonomo a pavimento