home page > Annunci immobiliari in Italia > Veneto > Padova > Maserà di Padova > Case e ville indipendenti in vendita > Scheda immobile

Case e ville indipendenti in vendita a Maserà di Padova

COMPILA IL MODULO SOTTOSTANTE PER RICEVERE MAGGIORI INFORMAZIONI







Invia la richiesta ad altre agenzie
Accetto il trattamento dei miei dati



Dimensioni immobiliari srl

Via santuario 41/c
35031 Abano Terme (PD)

0498935269    049.8035961    Riferimenti: Alice

Maserà di Padova
Prezzo: € 420.000
A4
4
2
240
Piano terra



Descrizione:
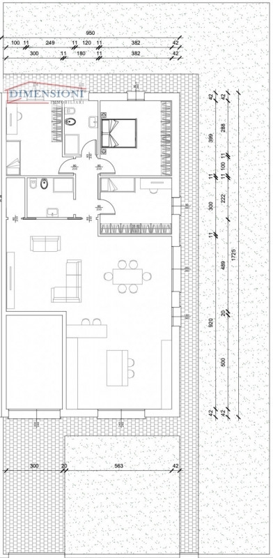
Masera' di padova nuova lottizzazioneproponiamo villa bifamiliare moderna tutta su un unico piano, con spazi generosi e tanta luce naturale. la zona giorno di 70 mq con salone e cucina a vista è davvero ampia e luminosa, perfetta per chi ama vivere in un ambiente accogliente, elegante e funzionale.la zona notte dispone di 4 camere matrimoniali, doppio servizio e una pratica cabina armadi. completano la proprietà garage e un ampio giardino di 400 mq, ideale per momenti di relax all'aperto.la villa è dotata di ventilazione meccanica controllata (vmc), riscaldamento a pavimento con pompa di calore, impianto fotovoltaico, e offre la possibilità di scegliere le finiture secondo i propri gusti, per una casa su misura, moderna e confortevole.una soluzione pensata per chi cerca stile, luminosità e funzionalità in ogni dettaglio.euro 420.000,00 rif.591an.b. Per motivi di privacy, l'indirizzo e il puntatore nella mappa sono indicativi e non corrispondono all'ubicazione esatta dell'immobile




Caratteristiche immobile:
Codice inserzione: 1763005556
Rif. Annuncio: 591A
Provincia: Padova
Comune: Maserà di Padova
Superficie (Mq) : 240 Mq.
Tipo immobile: Case e ville indipendenti
Stato immobile: nuovo
Anno costruzione/ristrutturazione: 2024
Piano: Piano terra
Camere: 4
Garage: Singolo
Bagni: 2

Costi:
Prezzo € 420.000


Efficienza energetica:
Classe energetica: A4
Indice di prestazione energetica (EPgl): 43.16 kWh/mq annui
Riscaldamento: autonomo a pavimento