home page > Annunci immobiliari in Italia > Veneto > Padova > Massanzago > Negozi uffici capannoni in affitto > Scheda immobile

Negozi uffici capannoni in affitto a Massanzago

COMPILA IL MODULO SOTTOSTANTE PER RICEVERE MAGGIORI INFORMAZIONI







Invia la richiesta ad altre agenzie
Accetto il trattamento dei miei dati



Agenzia immobiliare i portici di enrico favaro

Via cercariolo 2/a
30037 Scorzè (VE)

0413130140    +39 328 0064131    Riferimenti: Enrico Favaro

Massanzago
Prezzo: € 800
G
170



Descrizione:
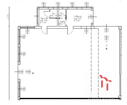
Zeminiana - proponiamo in locazione un laboratorio artigianale con una superficie totale di circa mq. 170, perfetto per le esigenze della tua attività.questo immobile è composto da una zona produttiva, caratterizzata da un'altezza interna di mt. 3,5 che consente la massima versatilità operativa; il reparto è dotato di un grande portone carraio (mt. 3,5 x 3) con finestre che garantiscono luminosità e ventilazione ottimali.all'interno sono presenti anche due servizi, una zona spogliatoio e un ufficio. il laboratorio è parte di un unico edificio con le stesse dimensioni che può diventare un unico capannone/laboratorio con una superficie totale di 330 mq, circa con doppio ingresso, servizi e uffici.metrature : - laboratorio 165 mq. Circa - spogliatoio 4,80 mq. - bagno wc 1,20 mq. - ufficio 8,40 mq.- antibagno 1,10 mq. - bagno wc 1,20 mq. prezzo : euro 800 mensili sei interessato?hai trovato la casa che desideravi da tanto tempo, ma hai bisogno di un mutuo per far avverare il tuo sogno? l'agenzia immobiliare i portici ti offre la consulenza di professionisti del settore che ti aiuteranno a trovare il mutuo più accessibile in base alle tue disponibilità economiche, aiutandoti ad orientarti nella scelta tra mutuo a tasso fisso, variabile o misto e ad usufruire delle agevolazioni fiscali previste. Il tutto nella massima trasparenza e professionalità.per ulteriori informazioni non esitare a contattarci+39 :// (ve) 30037, via cercariolo 2/aseguici anche su facebook e instagram per rimanere sempre aggiornato sulle nostre proposte.si intende precisare che gli indirizzi presenti negli annunci non sono identificativi dell'ubicazione precisa dell'immobile,danno un riferimento solo generico della zona al cliente che ricerca, al fine di tutelare la privacy e riservatezza del venditore




Caratteristiche immobile:
Codice inserzione: 1761882646
Rif. Annuncio: 02.ZEMI.F.LAB
Provincia: Padova
Comune: Massanzago
Superficie (Mq) : 170 Mq.
Tipo immobile: Negozi uffici capannoni
Anno costruzione/ristrutturazione: 1970

Costi:
Prezzo € 800


Efficienza energetica:
Classe energetica: G
Indice di prestazione energetica (EPgl): 233.19 kWh/mc annui