home page > Annunci immobiliari in Italia > Veneto > Padova > Massanzago > Negozi uffici capannoni in vendita > Scheda immobile

Negozi uffici capannoni in vendita a Massanzago

COMPILA IL MODULO SOTTOSTANTE PER RICEVERE MAGGIORI INFORMAZIONI







Invia la richiesta ad altre agenzie
Accetto il trattamento dei miei dati



Abitabilmente di ceccato manolo

Via valsugana 203/e
35010 San Giorgio in Bosco (PD)

0497961726    Riferimenti: Manolo Ceccato

Massanzago
Prezzo: € 700.000
1000



Descrizione:
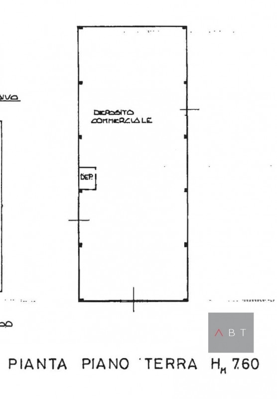
Capannone ad uso commerciale di 1000 mq. Con possibilità di costruire altri 1200 mq. Di fabbricato adiacente. L'immobile dispone di circa 9000 mq. Di scoperto privato. Classe energ. Non soggettoper info chiamare michele cell




Caratteristiche immobile:
Codice inserzione: 1763696953
Rif. Annuncio: 046
Provincia: Padova
Comune: Massanzago
Superficie (Mq) : 1000 Mq.
Tipo immobile: Negozi uffici capannoni
Stato immobile: usato
Anno costruzione/ristrutturazione: 1997

Costi:
Prezzo € 700.000


Efficienza energetica:
Classe energetica: Immobile non soggetto all'obbligo di certificazione