home page > Annunci immobiliari in Italia > Veneto > Padova > Mestrino > Negozi uffici capannoni in vendita > Scheda immobile

Negozi uffici capannoni in vendita a Mestrino

COMPILA IL MODULO SOTTOSTANTE PER RICEVERE MAGGIORI INFORMAZIONI







Invia la richiesta ad altre agenzie
Accetto il trattamento dei miei dati



Visentin immobiliare

Via cernaia 64
35121 Padova

049.8714955    Riferimenti: Davide Visentin

Mestrino
Prezzo: € 700.000
G
2
950
1



Descrizione:
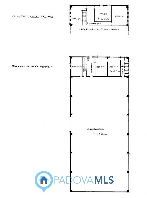
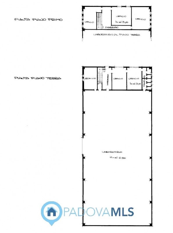
Immobile in esclusiva al gruppo padova mlsinteressante capannone singolo di forma rettangolare con piazzale per accesso di qualsiasi mezzo.l'immobile è dotato di uffici su due piani per circa 230 mq. E carro ponte nell'area laboratorio/deposito di circa 700 mq..si presenta in ottimo stato di conservazione. §non necessita di particolari lavori se non quelli relativi alle specifiche attività.d. Perché vedo che la pubblicità di questo immobile è inserita anche da altre agenzie ?r. Semplice e trasparente: questo è un immobile provvisto di regolare incarico da parte del venditore conferito a una sola agenzia del gruppo padova mls, che grazie all'esclusivo metodo di collaborazione consente, a tutte le agenzie aderenti, di ampliare e potenziare la visibilità dello stesso. Tale attività è debitamente regolamentata tra l'agenzia detentrice del mandato da parte del venditore e le agenzie autorizzate a proporlo.d. Cosa cambia quindi per chi cerca casa?r. Grazie a questo servizio il cliente potrà ricercare senza limiti territoriali la casa desiderata con l'assistenza di un unico interlocutore, che potrà aiutarlo e consigliarlo nella scelta tra tutti gli immobili disponibili nella rete di agenzie che si avvalgono di questo sistema di lavoro, riducendo i tempi di una affannosa ricerca e di continua richiesta di informazioni, e il venditore vede amplificata la promozione del suo immobile.




Caratteristiche immobile:
Codice inserzione: 1762746463
Rif. Annuncio: 1983
Provincia: Padova
Comune: Mestrino
Superficie (Mq) : 950 Mq.
Tipo immobile: Negozi uffici capannoni
Stato immobile: usato
Anno costruzione/ristrutturazione: 1982
Piano: 1
Bagni: 2

Costi:
Prezzo € 700.000


Efficienza energetica:
Classe energetica: G
Indice di prestazione energetica (EPgl): 183.08 kWh/mc annui
Riscaldamento: autonomo