home page > Annunci immobiliari in Italia > Veneto > Padova > Mestrino > Negozi uffici capannoni in vendita > Scheda immobile

Negozi uffici capannoni in vendita a Mestrino

COMPILA IL MODULO SOTTOSTANTE PER RICEVERE MAGGIORI INFORMAZIONI







Invia la richiesta ad altre agenzie
Accetto il trattamento dei miei dati



Quimmo agency

Via galileo galilei 6
48018 Faenza (RA)

0299944698

Mestrino
Prezzo: € 1.200.000
1320
1



Descrizione:
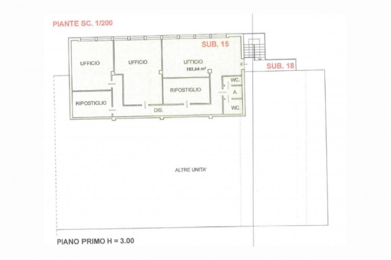
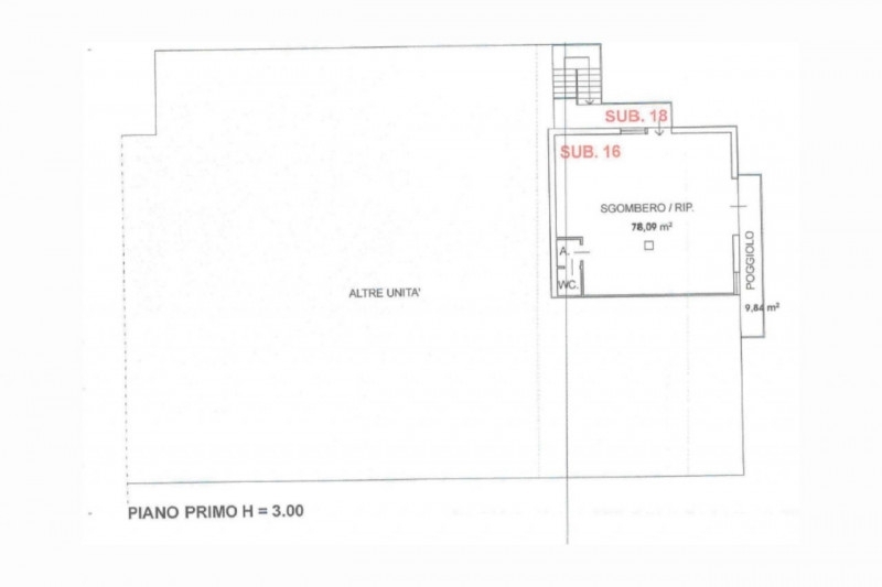
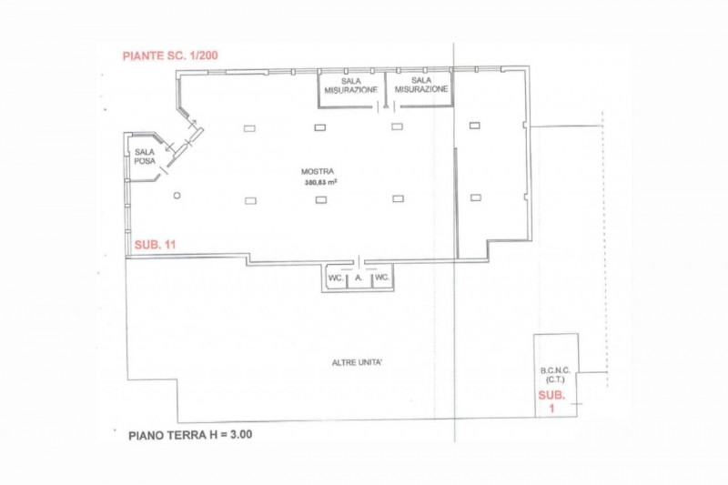
Proponiamo in vendita un ampio complesso immobiliare a destinazione prevalentemente commerciale, situato nel comune di mestrino (pd), a 8 km dal centro di padova, collegato a tutti i principali accessi diretti verso la città e in prossima espansione grazie ad un importante snodo ferroviario ad alta velocità. Il costante traffico veicolare consente alla location un'ottima visibilità.il fabbricato si sviluppa su un unico edificio che comprende al suo interno due unità commerciali al piano terra e al piano primo per una superficie complessiva di circa 900mq, un laboratorio grafico al piano terra di circa 151 mq, al primo piano troviamo un ufficio di 184 mq e un magazzino di 78 mq.fanno inoltre parte della proprietà 21 posti auto scoperti all'interno di una corte. L'intero compendio si colloca in una zona mista, residenziale e commerciale, piazzale esclusivo per sosta e un'eccellente esposizione verso l'autostrada, che ne valorizzano la vocazione a ospitare showroom, attività commerciali, funzioni produttivo-terziarie o altre attività compatibili.l'immobile, per caratteristiche dimensionali e posizione strategica, rappresenta un'ottima opportunità per investitori o operatori commerciali alla ricerca di una soluzione con ampia flessibilità d'uso, pronta per essere valorizzata in un contesto dinamico e ben connesso.




Caratteristiche immobile:
Codice inserzione: 1765166048
Rif. Annuncio: 2537801
Provincia: Padova
Comune: Mestrino
Superficie (Mq) : 1320 Mq.
Tipo immobile: Negozi uffici capannoni
Stato immobile: usato
Posti auto scoperti: 1 posto auto

Costi:
Prezzo € 1.200.000


Efficienza energetica: