Descrizione:
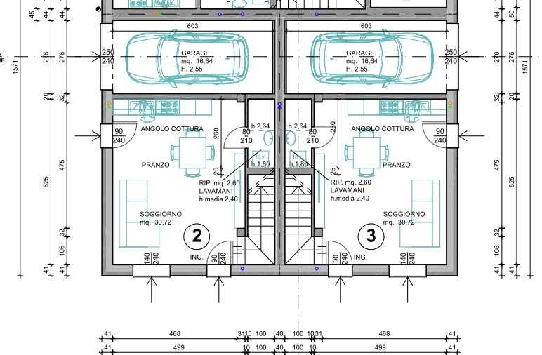
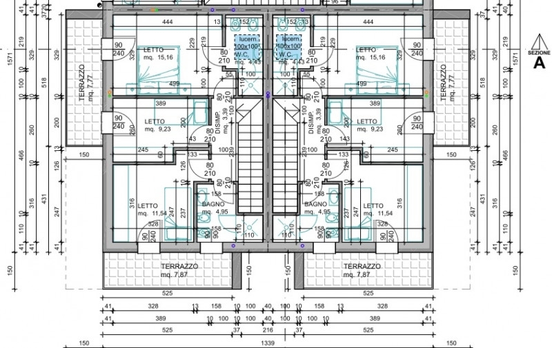
Composizione:l'abitazione è costituita al piano terra da luminosa zona giorno di circa 30 mq e bagno, al piano primo tre camere da letto di cui la padronale con bagno in camera e bagno a servizio della zona notte. Completano l'abitazione il garage e giardino di proprietà.caratteristiche:l'immobile di nuova costruzione realizzato con le moderne tecnologie per il risparmio energetico presenta: riscaldamento a pavimento, serramenti in pvc bianchi con vetrocamera, predisposizione aria condizionata. Istallazione di pannelli fotovoltaici. Finiture di pregio per pavimentazione, rivestimenti e sanitari a scelta dei clienticontesto:sita nel nuovo quartiere residenziale di ca' oddo. commento:soluzione ideale per chi cerca una casa dall'elevato comfort abitativo, con la possibilità di scegliere le rifiniture a proprio gusto.per info e appuntamenti:dicasa agenzia immobiliare - cell