home page > Annunci immobiliari in Italia > Veneto > Padova > Monselice > Case e ville a schiera in vendita > Scheda immobile

Case e ville a schiera in vendita a Monselice

COMPILA IL MODULO SOTTOSTANTE PER RICEVERE MAGGIORI INFORMAZIONI







Invia la richiesta ad altre agenzie
Accetto il trattamento dei miei dati



Agenzia immobiliare zaramella

Viale stazione 30
35036 Montegrotto Terme (PD)

049794924    Riferimenti: Valentina

Monselice
Prezzo: € 105.000
G
2
2
70
1



Descrizione:
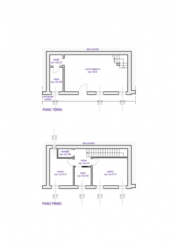
Monselice centro, casa accostata su due livelli, completamente da ristrutturare composta da:- piano terra con zona giorno e angolo cottura di circa 30 mq, bagno, disimpegno e ripostiglio- piano primo con 2 camere matrimoniali, disimpegno e bagno- locale staccato dall'immobile situato al piano terra con accesso diretto alla strada adibito a ripostiglio o deposito di mezzi a due ruote.l'immobile necessita di ristrutturazione, alcune opere di demolizione sono già state fatte, è stata realizzata un'ipotesi di bozza di progetto non presentato.l'immobile può essere utilizzato come abitazione principale o turistico, è ubicato in centro storico del paese, a pochi passi dalla casa c'è la possibilità di acquistare posti auto coperti.le visite si effettuano dopo l'appuntamento in agenzia.




Caratteristiche immobile:
Codice inserzione: 1774838306
Rif. Annuncio: 549
Provincia: Padova
Comune: Monselice
Superficie (Mq) : 70 Mq.
Tipo immobile: Case e ville a schiera
Stato immobile: ristrutturato
Anno costruzione/ristrutturazione: 1960
Piano: 1
Camere: 2
Garage: Singolo
Bagni: 2

Costi:
Prezzo € 105.000


Efficienza energetica:
Classe energetica: G
Indice di prestazione energetica (EPgl): 443.82 kWh/mq annui
Riscaldamento: autonomo a pavimento