home page > Annunci immobiliari in Italia > Veneto > Padova > Montegrotto Terme > Attici in vendita > Scheda immobile

Attici in vendita a Montegrotto Terme

COMPILA IL MODULO SOTTOSTANTE PER RICEVERE MAGGIORI INFORMAZIONI







Invia la richiesta ad altre agenzie
Accetto il trattamento dei miei dati



Il broker immobiliare

Via roma 244/a
35020 Albignasego (PD)

3398168925    3398168925

Montegrotto Terme
Prezzo: € 579.000
4
2
180
Ultimo piano



Descrizione:
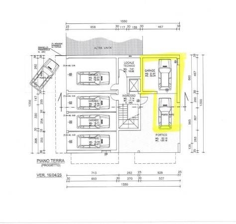
At1002xin vendita a montegrotto terme, proponiamo un elegante appartamento di 180 mq situato al secondo piano, in una nuova costruzione che offre il massimo del comfort e dell'efficienza energetica, con classe energetica a4. L'immobile è disposto su due livelli:il piano secondo si compone con quattro vani, due camere e due bagni.al piano superiore è prevista la predisposizione per due bagni, perfetto per famiglie o per chi cerca ampi spazi.la cucina abitabile è un ambiente accogliente e funzionale, ideale per trascorrere momenti conviviali. Gli interni sono caratterizzati da finiture moderne e di alta qualità, mentre il riscaldamento a pavimento e il sistema di condizionamento garantiscono un clima perfetto in ogni stagione.completano la proprietà un box/garage di 21 mq e un posto auto di 12 mq al piano terra, offrendo praticità e comodità. La posizione strategica di montegrotto terme permette di godere della tranquillità della zona, senza rinunciare alla vicinanza ai servizi e alle bellezze naturali dei colli euganei. Questo appartamento rappresenta un'opportunità imperdibile per chi desidera vivere in un contesto esclusivo e moderno. Non perdere l'occasione di visitarlo! classe energetica: a4




Caratteristiche immobile:
Codice inserzione: 1763088724
Rif. Annuncio: AT1002X
Provincia: Padova
Comune: Montegrotto Terme
Superficie (Mq) : 180 Mq.
Tipo immobile: Attici
Stato immobile: nuovo
Piano: Ultimo piano
Camere: 4
Garage: Singolo
Bagni: 2

Costi:
Prezzo € 579.000


Efficienza energetica: