home page > Annunci immobiliari in Italia > Veneto > Padova > Montegrotto Terme > Negozi uffici capannoni in affitto > Scheda immobile

Negozi uffici capannoni in affitto a Montegrotto Terme

COMPILA IL MODULO SOTTOSTANTE PER RICEVERE MAGGIORI INFORMAZIONI







Invia la richiesta ad altre agenzie
Accetto il trattamento dei miei dati



Immobilpoint

Via euganea feriole 72
35037 Teolo (PD)

0499903066    Riferimenti: Agenzia Account

Montegrotto Terme
Prezzo: € 950
A2
2
1
100
Piano terra



Descrizione:
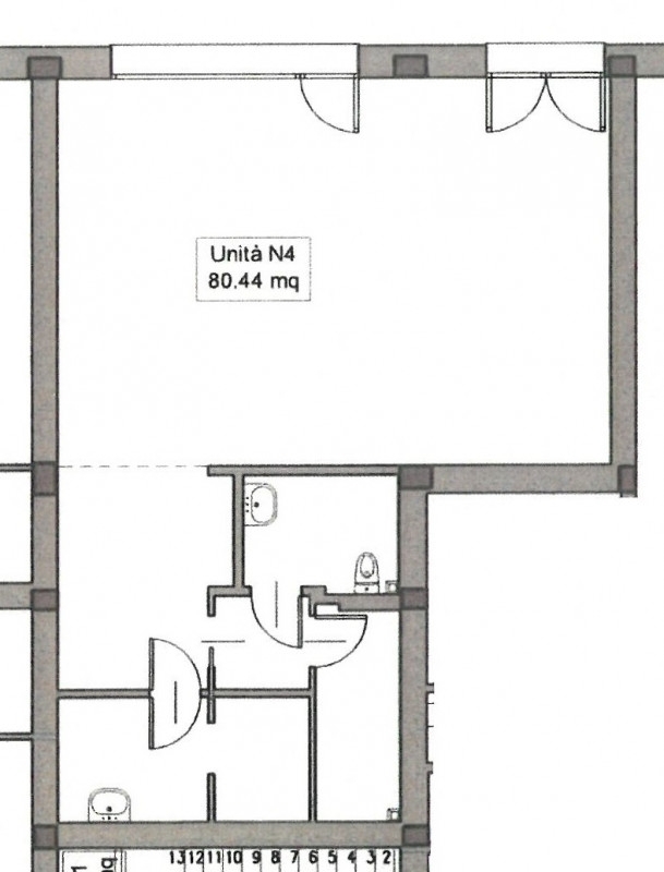
All'interno di un bellissimo quartiere residenziale di montegrotto proponiamo un ottimo negozio fronte strada, con antistante portico, utilizzato come bar, ancora completamente arredato e dotato di ottima impiantistica. l'unità ha una dimensione di 85 mq netti con zona cucina, spogliatoi, bagno e la zona bar con vari posti a sedere in un ambiente moderno e accogliente.si presta ad essere utilizzato come bar, per pranzi veloci e rivendita di alcuni generi alimentari a servizio del quartiere. possibilità di vendita anche senza arredamento.ulteriori informazioni verranno rilasciate dopo un incontro informativo in agenzia.rif. G048




Caratteristiche immobile:
Codice inserzione: 1745894807
Rif. Annuncio: GANR048
Provincia: Padova
Comune: Montegrotto Terme
Superficie (Mq) : 100 Mq.
Tipo immobile: Negozi uffici capannoni
Stato immobile: usato
Anno costruzione/ristrutturazione: 2018
Piano: Piano terra
Camere: 2
Arredato:
Tipologia giardino : Condominiale
Bagni: 1

Costi:
Prezzo € 950


Efficienza energetica:
Classe energetica: A2
Indice di prestazione energetica (EPgl): 112.4 kWh/mc annui
Riscaldamento: centralizzato a pavimento