home page > Annunci immobiliari in Italia > Veneto > Padova > Montegrotto Terme > Terreni in vendita > Scheda immobile

Terreni in vendita a Montegrotto Terme

COMPILA IL MODULO SOTTOSTANTE PER RICEVERE MAGGIORI INFORMAZIONI







Invia la richiesta ad altre agenzie
Accetto il trattamento dei miei dati



Ricercattiva - rip srls

Via bezzecca 8 ter ii
35121 Padova

0492619900    Riferimenti: Romano Pompili

Montegrotto Terme
Prezzo: € 55.000
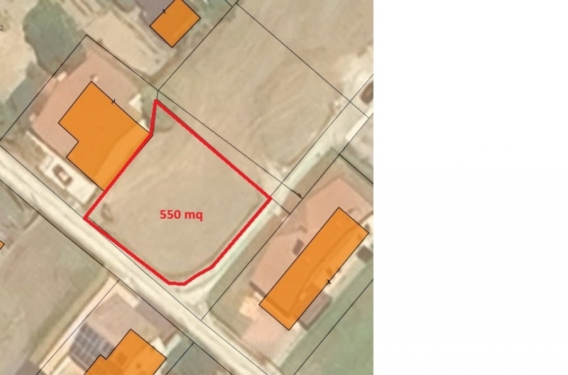
550



Descrizione:
Scopri un'opportunità imperdibile nel cuore di montegrotto terme! ti proponiamo in vendita un terreno edificabile residenziale di ben 550 mq, situato in una posizione ideale per la costruzione della tua villa singola. Il progetto approvato prevede la realizzazione di una villa su unico piano, senza scale, garantendo cosù accessibilità e comfort.questo lotto è l'ultima possibilità disponibile in un piccolo quartiere composto esclusivamente da case singole, lontano dal caos dei condomini. La zona è tranquilla e circondata da verde, perfetta per chi cerca serenità e privacy nella propria abitazione.la sua ubicazione strategica offre numerosi vantaggi: dista solo 900 metri dal policlinico di abano e dalla vivace piazza cristoforo colombo. Inoltre, grazie ai facili accessi alla viabilità primaria come la bretella abano-padova e il casello autostradale delle terme euganee, potrai spostarti comodamente verso le principali città limitrofe.non perdere questa occasione unica di investire nel tuo futuro! contatta subito l'agenzia per ulteriori informazioni o per organizzare una visita al sito.




Caratteristiche immobile:
Codice inserzione: 1760582648
Rif. Annuncio: MG55TER
Provincia: Padova
Comune: Montegrotto Terme
Superficie (Mq) : 550 Mq.
Tipo immobile: Terreni

Costi:
Prezzo € 55.000


Efficienza energetica: