home page > Annunci immobiliari in Italia > Veneto > Padova > Noventa Padovana > Case e ville indipendenti in vendita > Scheda immobile

Case e ville indipendenti in vendita a Noventa Padovana

COMPILA IL MODULO SOTTOSTANTE PER RICEVERE MAGGIORI INFORMAZIONI







Invia la richiesta ad altre agenzie
Accetto il trattamento dei miei dati



Veneto case noventa padovana

Via valmarana 46/a
35027 Noventa Padovana (PD)

0496456742

Noventa Padovana
Prezzo: € 345.000
G
3
250
Piano terra



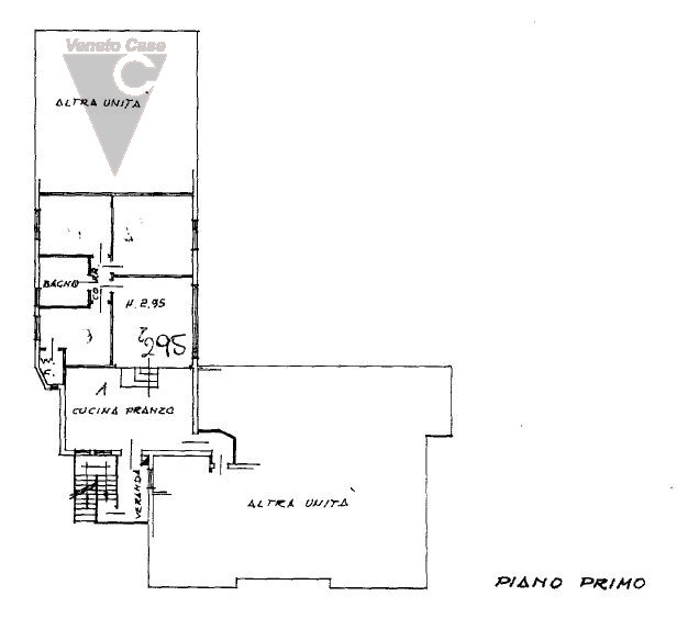
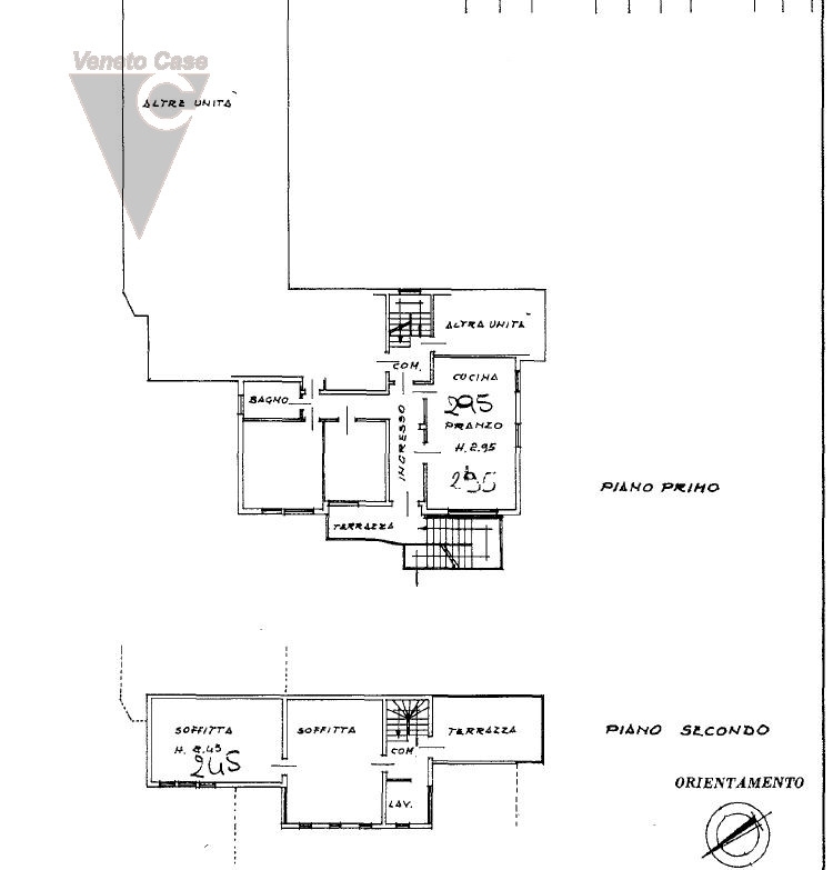
Descrizione:
Proponiamo in vendita complesso residenziale composto da due unità abitative e ampio laboratorio.la proprietà si sviluppa in due appartamenti autonomi, uno con 2 camere da letto e uno con 3 camere, entrambi caratterizzati da spaziose zone giorno. Completa la soluzione un capannone ad uso laboratorio di oltre 700 mq, ideale per attività artigianali, professionali o investimento. Il complesso si presenta da ristrutturare, offrendo interessanti potenzialità di valorizzazione e personalizzazione.classe energetica g ipe: 372.52 kwh/mq anno rif oltr510 - euro 345.000veneto case noventa padovanavia valmarana, 46/atel: vicinanze di noventa, padova, villatora, saonara, vigonovo, tombelle, strà, ponte san nicolò, legnaro, granze, ponte di brenta, riviera, arcella, guizza, forcellini, terranegra, voltabarozzo, camin, crocefisso, vigonza, peraga, busa, perarolo.




Caratteristiche immobile:
Codice inserzione: 1769767158
Rif. Annuncio: OLTR510
Provincia: Padova
Comune: Noventa Padovana
Zona: Oltre Brenta  
Superficie (Mq) : 250 Mq.
Tipo immobile: Case e ville indipendenti
Stato immobile: usato
Anno costruzione/ristrutturazione: 1960
Piano: Piano terra
Garage: Singolo
Bagni: 3
Terrazze: 1

Costi:
Prezzo € 345.000


Efficienza energetica:
Classe energetica: G
Indice di prestazione energetica (EPgl): 372.52 kWh/mq annui
Riscaldamento: autonomo