home page > Annunci immobiliari in Italia > Veneto > Padova > Ospedaletto Euganeo > Case e ville indipendenti in vendita > Scheda immobile

Case e ville indipendenti in vendita a Ospedaletto Euganeo

COMPILA IL MODULO SOTTOSTANTE PER RICEVERE MAGGIORI INFORMAZIONI







Invia la richiesta ad altre agenzie
Accetto il trattamento dei miei dati



Casa per casa s.r.l.

Via principe umberto 48
35042 Este (PD)

0429604143    Riferimenti: Amministrazione Casapercasa

Ospedaletto Euganeo
Prezzo: € 270.000
A4
3
2
140
1



Descrizione:
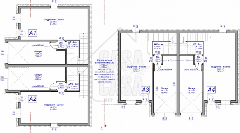
Rif. B237 in posizione tranquilla e comoda ai servizi, ad ospedaletto euganeo, a pochi minuti dalla cittadina di este, proponiamo in vendita nuove porzioni di bifamiliari completamente indipendenti.le abitazioni, si sviluppano su due livelli, ognuna con giardino privato esclusivo: al piano terra ampia zona giorno con angolo cottura, bagno finestrato e garage collegato all'abitazione; al piano primo tre camere da letto, un bagno ed un ripostiglio. prezzi a partire da € 270.000,00.le foto sono render puramente indicativi.per maggiori informazioni contattataci presso la nostra agenzia.l'agenzia casa per casa è composta da un team di professionisti che con le competenze più specifiche vi accompagneranno nel percorso di compravendita di un immobile. La tranquillità di essere seguiti in ogni passo e di avere un riferimento per ogni problema vi affiancheranno fino al rogito. Inoltre l'agenzia è in grado di poter espletare pratiche come: valutazioni, preventivi, stime immobiliari, certificazioni energetiche, permute, successioni etc.. Inoltre siamo presenti nelle zone di este, pernumia, stanghella, pozzonovo e paesi limitrofi. L'agenzia casa per casa srl ha sede in via principe umberto n. 48 este (pd). Recapiti: uff cell mail: - web:




Caratteristiche immobile:
Codice inserzione: 1775702045
Rif. Annuncio: B237
Provincia: Padova
Comune: Ospedaletto Euganeo
Superficie (Mq) : 140 Mq.
Tipo immobile: Case e ville indipendenti
Stato immobile: nuovo
Anno costruzione/ristrutturazione: 2026
Piano: 1
Camere: 3
Garage: Singolo
Bagni: 2

Costi:
Prezzo € 270.000


Efficienza energetica:
Classe energetica: A4
Riscaldamento: autonomo a pavimento