home page > Annunci immobiliari in Italia > Veneto > Padova > Ospedaletto Euganeo > Case e ville indipendenti in vendita > Scheda immobile

Case e ville indipendenti in vendita a Ospedaletto Euganeo

COMPILA IL MODULO SOTTOSTANTE PER RICEVERE MAGGIORI INFORMAZIONI







Invia la richiesta ad altre agenzie
Accetto il trattamento dei miei dati



Toninello immobiliare

Via porta vecchia 5
35042 Este (PD)

0429.601901

Ospedaletto Euganeo
Prezzo: € 270.000
3
2
127
Piano terra



Descrizione:
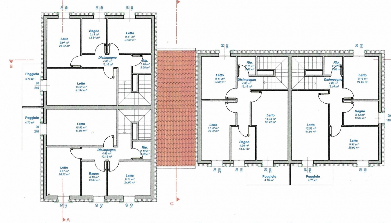
A ospedaletto euganeo, in posizione tranquilla e comoda ai servizi, a pochi minuti dalla splendida cittadina di este, proponiamo in vendita nuove porzioni di bifamiliari completamente indipendenti, ideali per chi cerca comfort, efficienza energetica e qualità abitativa. Tempo di realizzo 12 mesi circa.le abitazioni, ciascuna con giardino privato esclusivo, si sviluppano su due livelli:-piano terra:-ingresso indipendente-ampia zona giorno con angolo cottura-bagno finestrato-garage collegato direttamente all'abitazione- piano primo:-tre camere da letto-bagno-comodo ripostiglio-poggiolole unità saranno realizzate secondo i più moderni standard costruttivi e tecnologici, raggiungendo la classe energetica a4, il massimo livello di efficienza.dotazioni e caratteristiche:-impianto fotovoltaico-sistema di riscaldamento con pompa di calore (no gas)-elevato isolamento termico e acustico-materiali e finiture di ultima generazione-massimo comfort abitativo in tutte le stagioni.ogni abitazione è completamente indipendente, sia per quanto riguarda gli impianti tecnologici che gli accessi alla proprietà, garantendo privacy e autonomia totale.soluzione ideale per famiglie e per chi desidera una casa moderna, sostenibile e a basso consumo energetico, senza rinunciare alla tranquillità.prezzi da eu. 270.000 a eu. 290.000, a seconda della grandezza del giardino.contattaci oggi stesso per ricevere maggiori informazioni, planimetrie e fissare una visita senza impegno!l'agenzia toninello immobiliare di este, presente da oltre 40 anni sul territorio estense, offre ai propri clienti professionalità ed esperienza accompagnandoli passo dopo passo nella conclusione della compravendita e nella locazione. Trasparenza e cordialità contraddistinguono il nostro operato, convinti soprattutto che un cliente soddisfatto valga più di mille pubblicità! a disposizione dei nostri clienti in agenzia un team di professionisti qualificati quali geometra, architetto, avvocato, commercialista e consulente finanziario per pratiche di mutuo. Siamo presenti a este, monselice, padova, carceri, sant'elena, villa estense, baone, cinto euganeo, vò', torreglia, teolo, arquà petrarca, galzignano terme, montegrotto terme, ospedaletto euganeo, borgo veneto, ponso, megliadino san vitale, montagnana, solesino, sant'urbano, vescovana e paesi limitrofi. l'agenzia toninello immobiliare ha sede in via porta vecchia n.5 este (pd) recapiti: uff cell web: mail: classe energetica: a4




Caratteristiche immobile:
Codice inserzione: 1774578638
Rif. Annuncio: 112RV33731
Provincia: Padova
Comune: Ospedaletto Euganeo
Superficie (Mq) : 127 Mq.
Tipo immobile: Case e ville indipendenti
Stato immobile: nuovo
Piano: Piano terra
Camere: 3
Garage: Singolo
Bagni: 2

Costi:
Prezzo € 270.000


Efficienza energetica: