home page > Annunci immobiliari in Italia > Veneto > Padova > Piove di Sacco > Negozi uffici capannoni in vendita > Scheda immobile

Negozi uffici capannoni in vendita a Piove di Sacco

COMPILA IL MODULO SOTTOSTANTE PER RICEVERE MAGGIORI INFORMAZIONI







Invia la richiesta ad altre agenzie
Accetto il trattamento dei miei dati



Piazzaffari di dal santo renato

Via f.lli sanguinazzi 1 c/o centro commerciale di piazzagrande
35028 Piove di Sacco (PD)

049.9701069    Riferimenti: Renato Dal Santo

Piove di Sacco
Prezzo: info in agenzia
150
Piano terra



Descrizione:
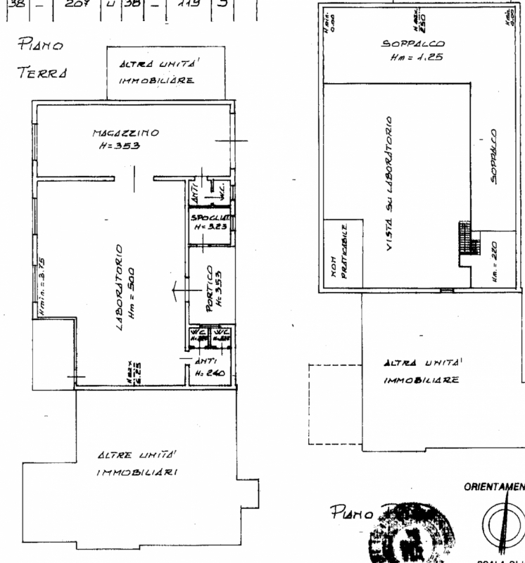
Proponiamo in vendita capannone artigianale di circa 150 mq con terreno agricolo di circa 6000 mq. l'ingresso risulta essere fronte nuova bretella da ponte già esistente, località arzerello. questa opportunità è ideale per un artigiano ma anche per privati che curano particolari hobby e che hanno bisogno di spazi per gestire le proprie passioni. rif. Pds394classe energetica in fase di definizione.l'indirizzo ed il puntatore di mappa indicati nell'annuncio, per motivi di privacy, sono a scopo indicativo.per ulteriori informazioni contatta:-dal santo renato ☎ agenzia immobiliare piazzaffari: o visita il nostro sito punti vendita a piove di sacco (pd)- via f.lli sanguinazzi, 1 - centro commerciale piazzagrande- via roma, 29 - centro storicoseguici anche su facebook https:// > > > se per acquistare la tua nuova casa hai la necessità di vendere prima la tua, non preoccuparti! saremo a tua disposizione per coordinare entrambe le compravendite fino ai rogiti notarili, avendo un unico interlocutore. < < <




Caratteristiche immobile:
Codice inserzione: 1773977647
Rif. Annuncio: PDS394
Provincia: Padova
Comune: Piove di Sacco
Superficie (Mq) : 150 Mq.
Tipo immobile: Negozi uffici capannoni
Piano: Piano terra

Costi:
Prezzo info in agenzia


Efficienza energetica: