home page > Annunci immobiliari in Italia > Veneto > Padova > Ponte San Nicolò > appartamenti in vendita > Scheda immobile

Appartamento in vendita a Ponte San Nicolò

COMPILA IL MODULO SOTTOSTANTE PER RICEVERE MAGGIORI INFORMAZIONI







Invia la richiesta ad altre agenzie
Accetto il trattamento dei miei dati



Il broker immobiliare

Via roma 244/a
35020 Albignasego (PD)

3398168925    3398168925

Ponte San Nicolò
Prezzo: € 175.000
D
1
1
60
2



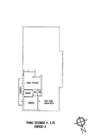
Descrizione:
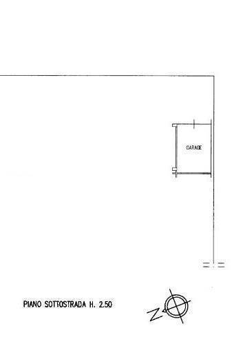
Ap1090xin vendita a rio di ponte san nicolo' accogliente appartamento di 60 mq situato al piano secondo e ultimo con ascensore, ideale per chi cerca un ambiente moderno e funzionale. L'immobile è composto da: ingresso con angolo cottura, disimpegno, una camera, bagno.l'appartamento è dotato di riscaldamento autonomo, che consente di gestire al meglio il comfort abitativo. L'ingresso è condominiale, ma offre la privacy necessaria per godere appieno degli spazi. Completano l'offerta un garage ideale per parcheggiare l'auto e riporre attrezzature.questa soluzione rappresenta un'opportunità unica per chi desidera vivere in un contesto tranquillo, ma ben collegato con le principali vie di comunicazione. Non perdere l'occasione di visitare questo appartamento, ideale per giovani coppie in cerca di un nuovo inizio. Contattaci per maggiori informazioni e per fissare un appuntamento! classe energetica: d




Caratteristiche immobile:
Codice inserzione: 1760493137
Rif. Annuncio: AP1090X-
Provincia: Padova
Comune: Ponte San Nicolò
Superficie (Mq) : 60 Mq.
Tipo immobile: Appartamento
Stato immobile: usato da riattare
Piano: 2
Camere: 1
Garage: Singolo
Bagni: 1

Costi:
Prezzo € 175.000


Efficienza energetica:
Classe energetica: D