Descrizione:
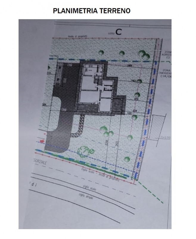
Ponte san nicolò, in zona rio, in vendita terreno edificabile con progetto per realizzare una unifamiliare possibilità di rivedere il progetto. Lavori già avviati con getto platea, area complessiva 1400 mq con possibilità di realizzare 600 mc.prezzo richiesto € 145.000fermo restando la zona indicata, l'indirizzo evidenziato è da ritenersi indicativo.per ulteriori informazioni e chiarimenti contattare la nostra agenzia al numero telefonico o inviate una e-mail: al seguente indirizzo di posta elettronica:   nostro ufficio è ad albignasego in via roma 121