home page > Annunci immobiliari in Italia > Veneto > Padova > Rubano > Negozi uffici capannoni in vendita > Scheda immobile

Negozi uffici capannoni in vendita a Rubano

COMPILA IL MODULO SOTTOSTANTE PER RICEVERE MAGGIORI INFORMAZIONI







Invia la richiesta ad altre agenzie
Accetto il trattamento dei miei dati



La piramide agenzia immobiliare

Via belfiore 2/a
35121 Padova

0498756606    Riferimenti: Agenzia La Piramide

Rubano
Prezzo: € 95.000
D
1
72
1
1



Descrizione:
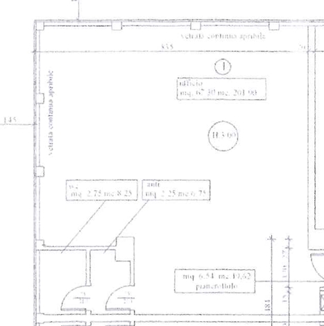
Sarmeola | ufficio in venditaproponiamo in vendita ufficio situato a sarmeola, facilmente raggiungibile dalle principali arterie stradali e dalla tangenziale.l'ufficio ha ampi e luminosi ambienti, riscaldamento completamente autonomo, situato in stabile dotato di ascensore, ideale per studi professionali, sedi aziendali o attività direzionali. Gli spazi risultano ben distribuiti e facilmente personalizzabili in base alle esigenze operative.il prezzo è comprensivo anche di un posto auto di proprietà.soluzione ideale per aziende che cercano una sede funzionale e ben collegata, oppure come investimento immobiliare.classe energetica 'd' i.p.e. 149,85rif. 1626




Caratteristiche immobile:
Codice inserzione: 1769573684
Rif. Annuncio: 428
Provincia: Padova
Comune: Rubano
Zona: Sarmeola  
Superficie (Mq) : 72 Mq.
Tipo immobile: Negozi uffici capannoni
Anno costruzione/ristrutturazione: 2007
Piano: 1
Posti auto scoperti: 1 posto auto
Bagni: 1

Costi:
Prezzo € 95.000


Efficienza energetica:
Classe energetica: D
Indice di prestazione energetica (EPgl): 149.85 kWh/mc annui
Riscaldamento: autonomo