home page > Annunci immobiliari in Italia > Veneto > Padova > Saccolongo > appartamenti in vendita > Scheda immobile

Appartamento in vendita a Saccolongo

COMPILA IL MODULO SOTTOSTANTE PER RICEVERE MAGGIORI INFORMAZIONI







Invia la richiesta ad altre agenzie
Accetto il trattamento dei miei dati



Archimedia

Via padova, 22
35030 Selvazzano Dentro (PD)

049620755    3929322357    Riferimenti: Creuso

Saccolongo
Prezzo: € 155.000
D
2
110



Descrizione:
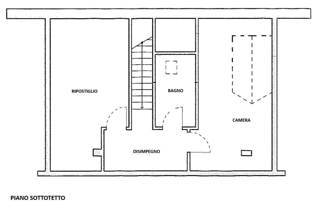
Duplex_bicamere_saccolongo - rif: j423nel cuore di saccolongo, all'interno di un contesto residenziale curato, servito da ascensore, proponiamo in vendita un appartamento sviluppato su due livelli, ideale per chi cerca comfort, funzionalità e un'ottima qualità abitativa.l'immobile si distingue per la distribuzione armoniosa degli spazi: - al piano d'ingresso troviamo un luminoso soggiorno, perfettamente collegato ad una cucina separata di generose dimensioni, oltre ad un bagno finestrato a servizio della zona giorno. - una comoda scala interna conduce alla zona notte mansardata, composta da 2 camere da letto e da un secondo bagno, funzionale e ben rifinito.a completare la proprietà un garage, comodo per auto e spazi di deposito.l'appartamento si presenta in buone condizioni, pronto da abitare, con finiture ben conservate e spazi che si adattano perfettamente sia ad un utilizzo residenziale principale sia come investimento da mettere a reddito.punti di forza:- posizione centralissima, comoda a tutti i servizi e ai collegamenti stradali principali- contesto tranquillo e ben abitato - buone metrature e spazi ben distribuiti un'occasione da non perdere!!!per maggiori informazioni: stai pensando di vendere la tua casa? affidati a noi! contattaci per una valutazione gratuita. Rimani aggiornato sulle nostre ultime proposte immobiliari seguendoci sui nostri canali social: facebook e instagram alla pagina archimedia immobiliare.vi invitiamo a consultare il nostro sito internet per poter valutare tutte le nostre proposte immobiliari informazioni contenute in questo annuncio non costituiscono elemento contrattuale e sono fornite a solo scopo informativo.classe energetica: d 151,64 kwh/m3 a




Caratteristiche immobile:
Codice inserzione: 1764547904
Rif. Annuncio: J423
Provincia: Padova
Comune: Saccolongo
Superficie (Mq) : 110 Mq.
Tipo immobile: Appartamento
Camere: 2

Costi:
Prezzo € 155.000


Efficienza energetica:
Classe energetica: D
Indice di prestazione energetica (EPgl): 151.64 kWh/mq annui