home page > Annunci immobiliari in Italia > Veneto > Padova > Saccolongo > Negozi uffici capannoni in affitto > Scheda immobile

Negozi uffici capannoni in affitto a Saccolongo

COMPILA IL MODULO SOTTOSTANTE PER RICEVERE MAGGIORI INFORMAZIONI







Invia la richiesta ad altre agenzie
Accetto il trattamento dei miei dati



Immobilpoint

Via euganea feriole 72
35037 Teolo (PD)

0499903066    Riferimenti: Agenzia Account

Saccolongo
Prezzo: € 1.800
A1
2
255
Piano terra
1



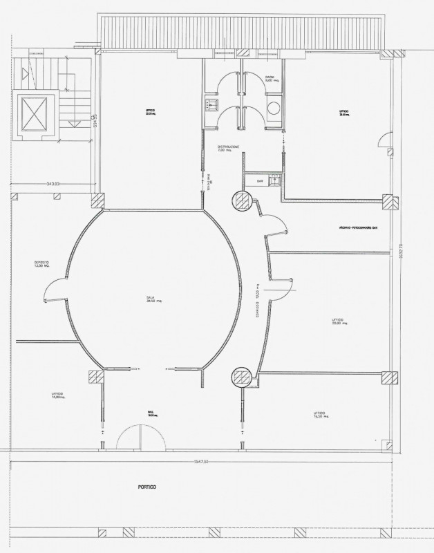
Descrizione:
Nel cuore di saccolongo, proponiamo in vendita e in locazione un ampio e elegante immobile a destinazione commerciale e direzionale, ideale come showroom, studio professionale o sede per uffici aziendali di rappresentanza.l'immobile si distingue per una distribuzione interna funzionale e di forte impatto visivo: l'ingresso accoglie i clienti in una raffinata zona reception, luminosa e ben organizzata, che conduce alla suggestiva sala centrale di forma circolare, perfetta come area riunioni, esposizione o spazio operativo condiviso.attorno alla sala principale si sviluppano ulteriori ambienti indipendenti, ideali come uffici direzionali, sale operative o locali di supporto. Completano la proprietà i servizi igienici e gli spazi tecnici, garantendo piena funzionalità per qualsiasi attività professionale.gli ambienti si presentano in ottimo stato manutentivo, con finiture curate, illuminazione tecnica e impianto di climatizzazione canalizzata già installata e spazi facilmente adattabili alle diverse esigenze operative.l'immobile dispone inoltre di un locale tecnico di 22 mq al piano interrato.punti di forzalayout unico con sala centrale circolare di grande impattoideale per showroom, studi professionali o attività direzionalizona reception già strutturataambienti suddivisi ma facilmente personalizzabiliottima luminosità internapronto da agosto 2026per maggiori informazioni o fissare una visita vi invitiamo a contattare subito l'agenzia indicando rif. G055: sarete ricontattati dopo un primo incontro informativo presso i nostri uffici.




Caratteristiche immobile:
Codice inserzione: 1774237605
Rif. Annuncio: G055au
Provincia: Padova
Comune: Saccolongo
Superficie (Mq) : 255 Mq.
Tipo immobile: Negozi uffici capannoni
Stato immobile: usato
Anno costruzione/ristrutturazione: 2001
Piano: Piano terra
Posti auto scoperti: 1 posto auto
Bagni: 2

Costi:
Prezzo € 1.800


Efficienza energetica:
Classe energetica: A1
Indice di prestazione energetica (EPgl): 186.6 kWh/mc annui
Riscaldamento: autonomo