home page > Annunci immobiliari in Italia > Veneto > Padova > San Martino di Lupari > appartamenti in vendita > Scheda immobile

Appartamento in vendita a San Martino di Lupari

COMPILA IL MODULO SOTTOSTANTE PER RICEVERE MAGGIORI INFORMAZIONI







Invia la richiesta ad altre agenzie
Accetto il trattamento dei miei dati



Zanimmobiliare di adriana zani

Via francia 12
31033 Castelfranco Veneto (TV)

0423372421    Riferimenti: Adriana Zani

San Martino di Lupari
Prezzo: € 390.000
A4
3
2
177
1
1



Descrizione:
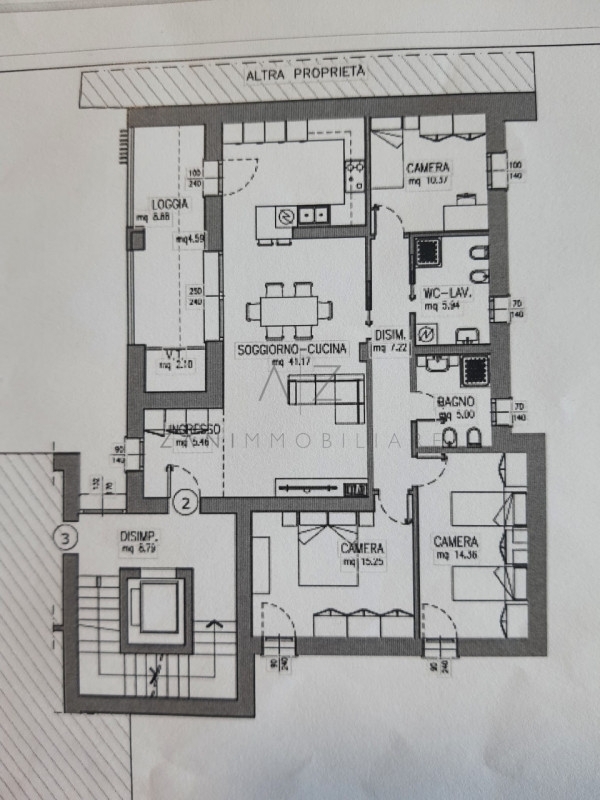
Proponiamo in vendita uno splendido appartamento quadrilocale situato al piano primo di un condominio di sole 5 unità, nel centro di san martino di lupari.l'immobile è composto da un soggiorno con angolo cottura (con la possibilità di avere una cucina separata), disimpego, due camere matrimoniali, una camera singola, due bagni di cui uno con lavanderia annesa, ed un terrazzo vivibile al quale si accede dal soggiorno. al piano terra completano la proprietà un garage doppio e una cantina.il quadrilocale dispone inoltre di riscaldamento a pavimento, raffrescamento a splitter già funzionante, impianto fotovoltaico da 4,5 kw, tapparelle motorizzate, ascensore, posto auto privato, garage motorizzati, possibilità di personalizzazione delle finiture.questo intervento ha la possibilità di usufruire del sismabonus (€48.000 in 10 anni).per maggiori informazioni consulente nicola:




Caratteristiche immobile:
Codice inserzione: 1758682160
Rif. Annuncio: NGV21-25
Provincia: Padova
Comune: San Martino di Lupari
Superficie (Mq) : 177 Mq.
Tipo immobile: Appartamento
Stato immobile: nuovo
Anno costruzione/ristrutturazione: 2025
Piano: 1
Camere: 3
Garage: Doppio
Posti auto scoperti: 1 posto auto
Bagni: 2 + lavanderia
Terrazze: 1

Costi:
Prezzo € 390.000


Efficienza energetica:
Classe energetica: A4
Riscaldamento: autonomo a pavimento