home page > Annunci immobiliari in Italia > Veneto > Padova > San Martino di Lupari > Case e ville indipendenti in vendita > Scheda immobile

Case e ville indipendenti in vendita a San Martino di Lupari

COMPILA IL MODULO SOTTOSTANTE PER RICEVERE MAGGIORI INFORMAZIONI







Invia la richiesta ad altre agenzie
Accetto il trattamento dei miei dati



Abitabilmente di ceccato manolo

Via valsugana 203/e
35010 San Giorgio in Bosco (PD)

0497961726    Riferimenti: Manolo Ceccato

San Martino di Lupari
Prezzo: € 387.000
A4
2
2
186
1
1



Descrizione:
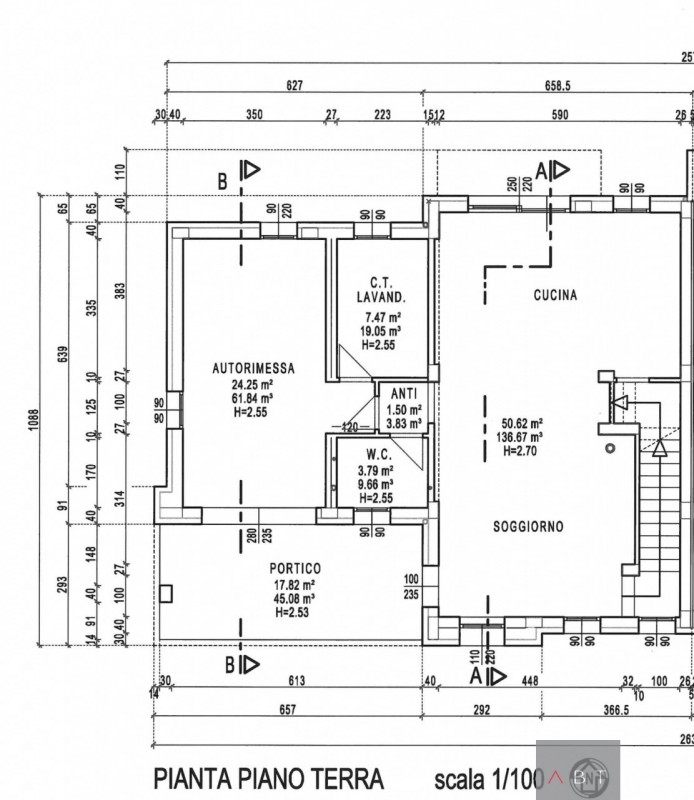
Situata nella frazione di campagnalta, nuova porzione di bifamiliare composta di: ingresso, soggiorno con angolo cottura di 51 mq, due bagni, lavanderia, due camere, disimpegno, ripostiglio, poggiolo, portico, mansarda di 39 mq, garage di 24 mq con portone sezionale motorizzato e giardino privato di circa 420 mq. L'immobile dispone d'impianto di riscaldamento a pavimento con pompa di calore e fotovoltaico da 6 kw. Disponibili entrambe le porzioni. Classe energ a4per info chiamare michele cell




Caratteristiche immobile:
Codice inserzione: 1768969193
Rif. Annuncio: 049
Provincia: Padova
Comune: San Martino di Lupari
Zona: Campagnalta  
Superficie (Mq) : 186 Mq.
Tipo immobile: Case e ville indipendenti
Stato immobile: nuovo
Anno costruzione/ristrutturazione: 2026
Piano: 1
Camere: 2
Garage: Singolo
Posti auto scoperti: 1 posto auto
Bagni: 2 + lavanderia

Costi:
Prezzo € 387.000


Efficienza energetica:
Classe energetica: A4
Riscaldamento: autonomo a pavimento