0444.543757 +39 348 3884553
 D
						
						D					 3
						
						3					 3
						
						3					 190
						
						190					
						
						Descrizione:
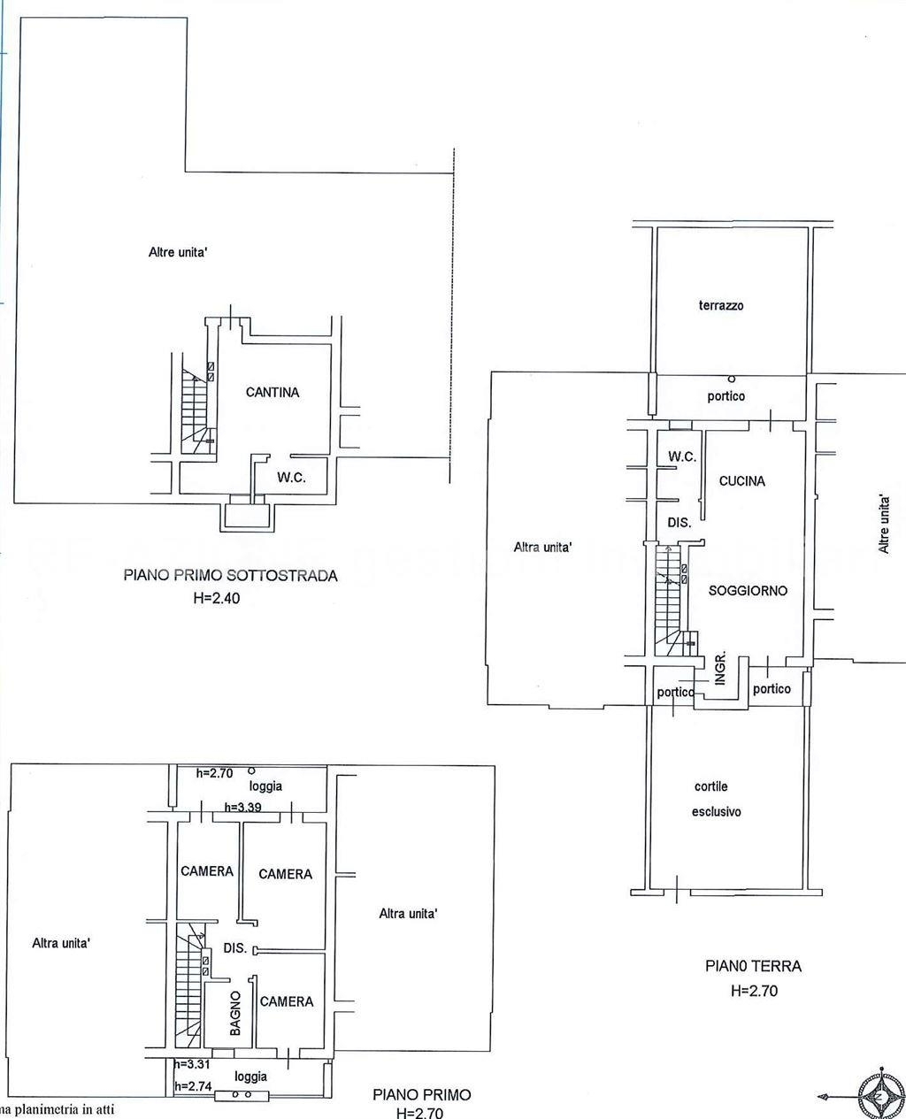
Vendesi villino affiancato in ottimo stato di mq. 190 in zona tranquilla con cortile privato, autorimessa doppia, cantina e lastrico solare.l'immobile si sviluppa su tre livelli. Al piano terra portico d'ingresso, ampio soggiorno con angolo cottura, bagno, porticato e lastrico solare. Il primo piano si compone di n. 3 camere letto, bagno e due logge ed al piano interrato e' posta un'autorimessa per due auto, taverna/cantina e bagno.classe energetica 'd'. Prezzo richiesto euro 290.000,00#per info: nicola valitutti 					
| Codice inserzione: | 1761714198 | 
| Rif. Annuncio: | 5203 | 
| Provincia: | Padova | 
| Comune: | San Pietro in Gu | 
| Superficie (Mq) : | 190 Mq. | 
| Tipo immobile: | Case e ville a schiera | 
| Stato immobile: | recente | 
| Anno costruzione/ristrutturazione: | 2010 | 
| Camere: | 3 | 
| Stato al rogito: | Libero | 
| Garage: | Doppio | 
| Tipologia giardino : | Privato | 
| Bagni: | 3 | 
| Prezzo | € 290.000 | 
| Spese condominiali: | € 0 | 
| Classe energetica: | D | 
| Indice di prestazione energetica (EPgl): | 97.84 kWh/mq annui | 
| Riscaldamento: | autonomo | 
| Tipologia riscaldamento: | Metano |