home page > Annunci immobiliari in Italia > Veneto > Padova > Sant'Angelo di Piove di Sacco > Negozi uffici capannoni in affitto > Scheda immobile

Negozi uffici capannoni in affitto a Sant'Angelo di Piove di Sacco

COMPILA IL MODULO SOTTOSTANTE PER RICEVERE MAGGIORI INFORMAZIONI







Invia la richiesta ad altre agenzie
Accetto il trattamento dei miei dati



Immobiliare vigocasa di sanavia paolo

Leonardo da vinci 5
30030 Vigonovo (VE)

0499834033    Riferimenti: Paolo Sanavia

Sant'Angelo di Piove di Sacco
Prezzo: € 600
F
70
Piano terra



Descrizione:
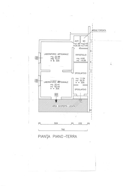
In pieno centro a celeseo di sant'angelo di piove, proponiamo in affitto un spazioso laboratorio di 70 mq, al piano terra con vetrina fronte strada, perfetto per ogni tipo di attività. Versatile e ideale anche come ufficio o studio professionale. Inoltre, il laboratorio dispone di un piccolo scoperto privato di 20 mq.




Caratteristiche immobile:
Codice inserzione: 1763697633
Rif. Annuncio: 1459
Provincia: Padova
Comune: Sant'Angelo di Piove di Sacco
Superficie (Mq) : 70 Mq.
Tipo immobile: Negozi uffici capannoni
Stato immobile: usato
Piano: Piano terra

Costi:
Prezzo € 600


Efficienza energetica:
Classe energetica: F
Indice di prestazione energetica (EPgl): 187.5 kWh/mc annui
Riscaldamento: autonomo