home page > Annunci immobiliari in Italia > Veneto > Padova > Saonara > Case e ville indipendenti in vendita > Scheda immobile

Case e ville indipendenti in vendita a Saonara

COMPILA IL MODULO SOTTOSTANTE PER RICEVERE MAGGIORI INFORMAZIONI







Invia la richiesta ad altre agenzie
Accetto il trattamento dei miei dati



Veneto case camin

Via corsica 1
35121 Padova

0497423032

Saonara
Prezzo: € 595.000
A4
3
2
200
2
1



Descrizione:
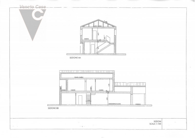
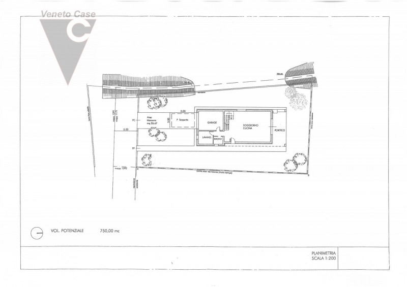
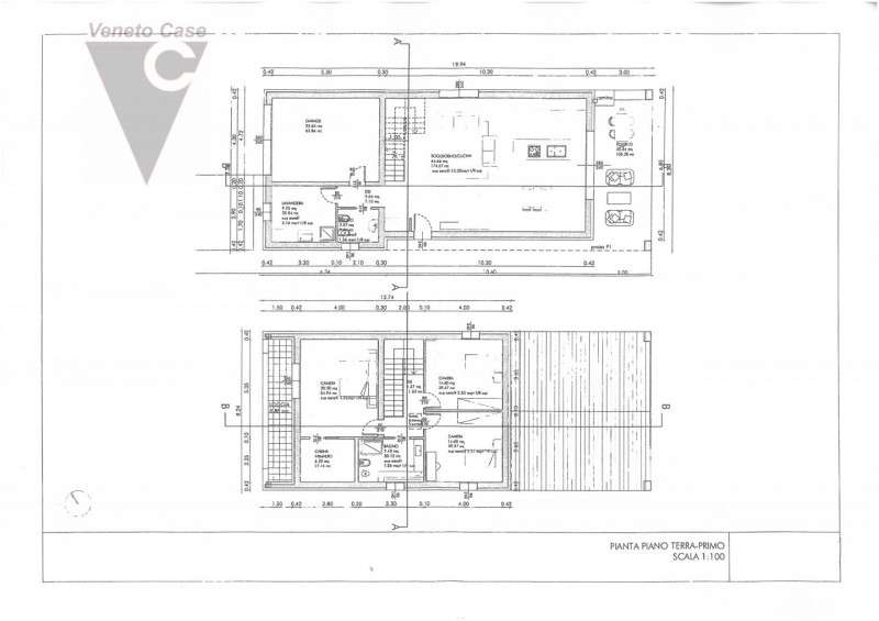
In centro a villatora, comoda ai servizi, proponiamo moderna villa singola sviluppata su due piani di circa 200 mq. L'abitazione si compone di una grande zona giorno open space di oltre 65 mq illuminata da ampie vetrate, bagno e lavanderia al piano terra; camera padronale con cabina armadio, 2 camere matrimoniali ed 1 bagno al piano primo. Completano la proprietà il garage ed il giardino privato. L'abitazione verrà terminata su misura per il cliente finale, con distribuzione degli spazi e finiture totalmente personalizzabili. Tecnologia costruttiva di altissimo livello.classe a4 ipe 30,48 - rif: cvil532 - euro 595.000veneto case caminvia corsica, 1tel: vicinanze di noventa, padova, villatora, saonara, vigonovo, tombelle, strà, ponte san nicolò, legnaro, granze, ponte di brenta, riviera, arcella, guizza, forcellini, terranegra, voltabarozzo, camin, crocefisso, vigonza, peraga, busa, perarolo.




Caratteristiche immobile:
Codice inserzione: 1764649348
Rif. Annuncio: CVIL532
Provincia: Padova
Comune: Saonara
Zona: Villatora  
Superficie (Mq) : 200 Mq.
Tipo immobile: Case e ville indipendenti
Stato immobile: nuovo
Anno costruzione/ristrutturazione: 2025
Piano: 2
Camere: 3
Garage: Singolo
Posti auto scoperti: 1 posto auto
Bagni: 2 + lavanderia

Costi:
Prezzo € 595.000


Efficienza energetica:
Classe energetica: A4
Indice di prestazione energetica (EPgl): 30.48 kWh/mq annui
Riscaldamento: autonomo a pavimento