home page > Annunci immobiliari in Italia > Veneto > Padova > Selvazzano Dentro > appartamenti in vendita > Scheda immobile

Appartamento in vendita a Selvazzano Dentro

COMPILA IL MODULO SOTTOSTANTE PER RICEVERE MAGGIORI INFORMAZIONI







Invia la richiesta ad altre agenzie
Accetto il trattamento dei miei dati



My home selva s.r.l.

Via padova 12/e
35030 Selvazzano Dentro (PD)

0498686040    Riferimenti: MYHOMEGROUP Selvazzano

Selvazzano Dentro
Prezzo: € 400.000
A4
3
2
175
2
1



Descrizione:
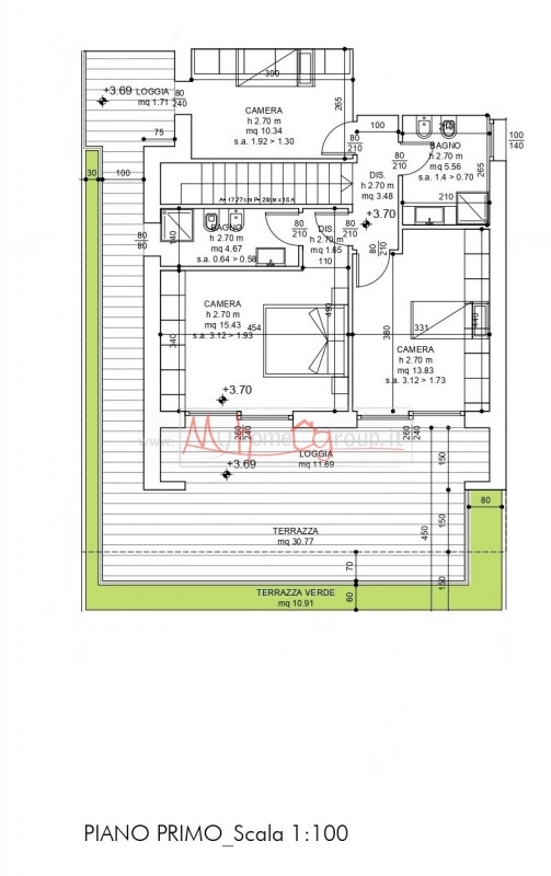
S.domenico - (rif.a6011-s) - scopri un'opportunità unica nel cuore del quartiere san domenico, a selvazzano dentro. Proponiamo in vendita un appartamento di nuova costruzione all'interno di un fabbricato di 3 unità senza spese condominiali.questo splendido immobile si sviluppa su una superficie di 175 mq e occupa il secondo e ultimo piano, accessibile tramite ascensore. La zona giorno è caratterizzata da un ampio soggiorno con angolo cucina che supera i 55 mq, illuminato da una vetrata panoramica che conduce a una terrazza abitabile di oltre 60 mq, perfetta per godere delle belle giornate all'aperto grazie alla tripla esposizione.la zona notte comprende tre camere matrimoniali spaziose; la camera padronale dispone di bagno privato per garantire la massima privacy. A completare l'appartamento troviamo anche un comodo ripostiglio separato e un ulteriore bagno finestrato servito da una terrazza aggiuntiva di circa 8 mq.inoltre, l'immobile include al piano terra un garage doppio e un posto auto riservato in proprietà. Le caratteristiche tecniche costruttive sono d'avanguardia: classe energetica a4 con impianto fotovoltaico autonomo da 4,5kw assicurano efficienza energetica e sostenibilità.gli acquirenti avranno anche la possibilità di personalizzare le finiture scegliendo tra un ampio capitolato disponibile.situato in una posizione strategica nei pressi dei servizi principali come scuole, negozi e aree verdi, questo appartamento rappresenta la scelta ideale per famiglie o professionisti in cerca della propria oasi urbana.chiamaci per avere ulteriori informazioni o per fissare un appuntamento: agenzia immobiliare myhomegroup - via padova 12/e, 35030 selvazzano dentro - pd - tel vendere per comprare? nessun problema, ci pensiamo noi!vuoi acquistare la tua nuova casa ma hai bisogno di vendere prima? my home group ti offre un servizio completo per la vendita del tuo immobile, aiutandoti a ottenere il massimo valore in tempi rapidi.valutazione gratuita e senza impegnoscopri quanto vale la tua casa!prenota subito una valutazione gratuita con i nostri esperti.https:// una valutazioneaffidati a noi per una gestione semplice e professionale della vendita del tuo immobile!l'agenzia myhomegroup di selvazzano dentro, copre le zone di tencarola, caselle, san domenico, feriole, abano terme, montegrotto, saccolongo, teolo, torreglia, cervarese santa croce, mestrino, rubano, padova.




Caratteristiche immobile:
Codice inserzione: 1767931252
Rif. Annuncio: A6011-S
Provincia: Padova
Comune: Selvazzano Dentro
Zona: San Domenico  
Superficie (Mq) : 175 Mq.
Tipo immobile: Appartamento
Stato immobile: nuovo
Anno costruzione/ristrutturazione: 2026
Piano: 2
Camere: 3
Garage: Doppio
Posti auto scoperti: 1 posto auto
Bagni: 2
Terrazze: 2

Costi:
Prezzo € 400.000


Efficienza energetica:
Classe energetica: A4
Indice di prestazione energetica (EPgl): 6 kWh/mq annui
Riscaldamento: autonomo a pavimento