home page > Annunci immobiliari in Italia > Veneto > Padova > Selvazzano Dentro > Case e ville indipendenti in vendita > Scheda immobile

Case e ville indipendenti in vendita a Selvazzano Dentro

COMPILA IL MODULO SOTTOSTANTE PER RICEVERE MAGGIORI INFORMAZIONI







Invia la richiesta ad altre agenzie
Accetto il trattamento dei miei dati



Eurocostruzioni eurocasa s.r.l.

Via torre 51
35121 Padova

0498932712    Riferimenti: Diego Tasinato

Selvazzano Dentro
Prezzo: € 550.000
A4
3
2
180
Piano terra
1



Descrizione:
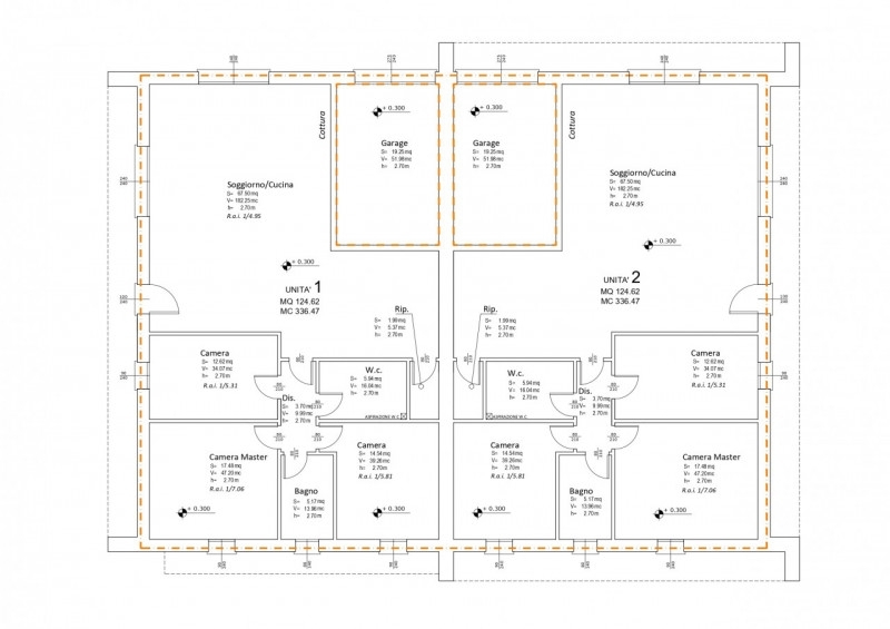
Selvazzano dentro, in zona san domenico, di nuova realizzazione porzione di bifamiliare tutta su un livello composta da: ingresso, luminosa zona giorno con ampie vetrate di quasi 70mq, disimpegno con tre camere da letto di cui due matrimoniali e una doppia, due servizi (uno finestrato e uno cieco) e comodo ripostiglio. Completa l'immobile i garage di 20mq e lo scoperto privato su tre lati di oltre 300mq.la costruzione, di ultima generazione, si distinguerà per l'alto efficientamento energetico grazie a pannelli solari e fotovoltaici, materiali isolanti ecocompatibili, impianto di riscaldamento a pavimento, impianto domotica, rivestimenti di pregio.classe energetica a4




Caratteristiche immobile:
Codice inserzione: 1773286308
Rif. Annuncio: M2102
Provincia: Padova
Comune: Selvazzano Dentro
Zona: San Domenico  
Superficie (Mq) : 180 Mq.
Tipo immobile: Case e ville indipendenti
Stato immobile: nuovo
Anno costruzione/ristrutturazione: 2026
Piano: Piano terra
Camere: 3
Garage: Singolo
Posti auto scoperti: 1 posto auto
Bagni: 2

Costi:
Prezzo € 550.000


Efficienza energetica:
Classe energetica: A4
Riscaldamento: autonomo a pavimento