home page > Annunci immobiliari in Italia > Veneto > Padova > Selvazzano Dentro > appartamenti in vendita > Scheda immobile

Appartamento in vendita a Selvazzano Dentro

COMPILA IL MODULO SOTTOSTANTE PER RICEVERE MAGGIORI INFORMAZIONI







Invia la richiesta ad altre agenzie
Accetto il trattamento dei miei dati



Studio immobiliare esse gi

Via medoaco 4
35121 Padova

049.7969480    3482515972    Riferimenti: Sergio Guizzo

Selvazzano Dentro
Prezzo: € 205.000
D
1
1
150
99



Descrizione:
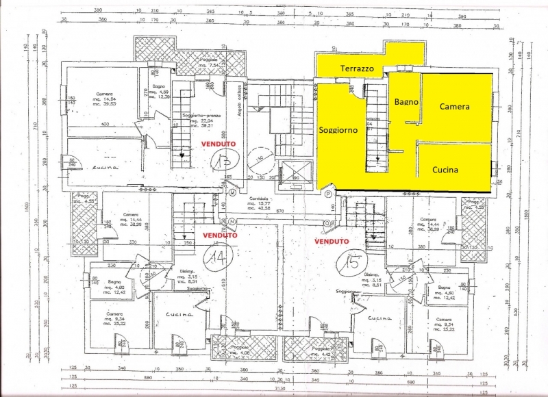
Caselle di selvazzano: vendesi in complesso residenziale appartamento ultimo piano sviluppato su due livelli e composto da ingresso, soggiorno, cucina separata, camera matrimoniale, bagno. In aggiunta al piano superiore troviamo una mansarda aperta a diverse possibilità d'uso quali studio o area relax. Completa la proposta il garage privato al piano terra.termo gas autonomo, predisposizione impianto d'aria condizionata, ascensore. classe energetica d-indice di prestazione 92,59 kwh/mq annuo. Riferimento duplex205. Libero subito. richiesti €uro 205.000,00 trattabili. Superficie commerciale mq.150.in ottemperanza alla normativa vigente sulla privacy l'indirizzo riportato nell'annuncio e nella mappa sono puramente indicativi e non corrispondono all'indirizzo esatto in cui è ubicato l'immobile.per informazioni oppure per prenotare un sopralluogo contattateci oppure visitate il sito web dove troverete altre proposte immobiliari.




Caratteristiche immobile:
Codice inserzione: 1769767200
Rif. Annuncio: Duplex205
Provincia: Padova
Comune: Selvazzano Dentro
Zona: Caselle  
Superficie (Mq) : 150 Mq.
Tipo immobile: Appartamento
Stato immobile: usato
Anno costruzione/ristrutturazione: 2005
Piano: Ultimo piano
Camere: 1
Garage: Singolo
Tipologia giardino : Condominiale
Bagni: 1

Costi:
Prezzo € 205.000


Efficienza energetica:
Classe energetica: D
Indice di prestazione energetica (EPgl): 92.59 kWh/mq annui
Riscaldamento: autonomo