home page > Annunci immobiliari in Italia > Veneto > Padova > Torreglia > Negozi uffici capannoni in vendita > Scheda immobile

Negozi uffici capannoni in vendita a Torreglia

COMPILA IL MODULO SOTTOSTANTE PER RICEVERE MAGGIORI INFORMAZIONI







Invia la richiesta ad altre agenzie
Accetto il trattamento dei miei dati



Mode home group

Via san pio x 36/h
35031 Abano Terme (PD)

0498602826    Riferimenti: Principale Account

Torreglia
Prezzo: € 126.000
B
80
1



Descrizione:
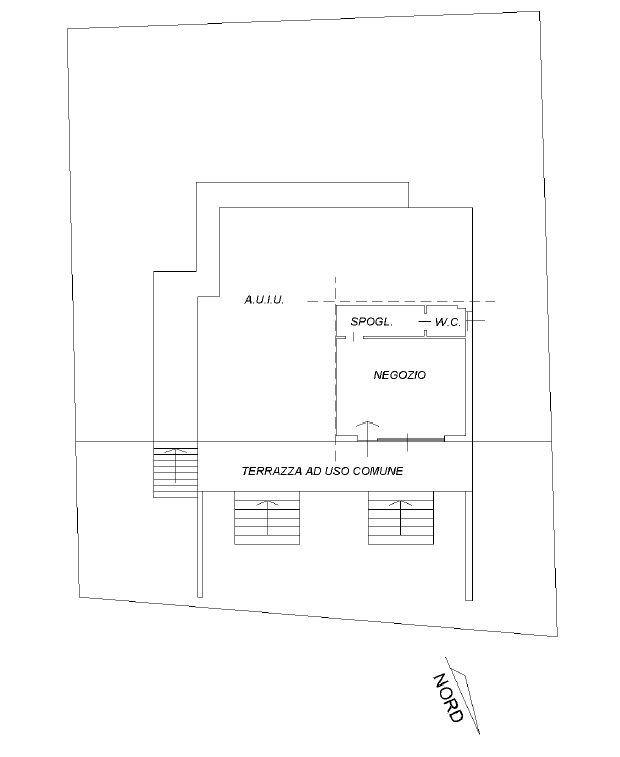
Nel cuore di torreglia, lungo la via principale e in posizione di forte passaggio, proponiamo in vendita due locali commerciali adiacenti, entrambi al piano terra e con affaccio diretto su strada.la proprietà comprende:• due negozi di circa 40 mq cadauno con grandi vetrine fronte strada;• quattro posti auto di proprietà esclusiva complessivi;• parcheggi pubblici antistanti;• nessuna spesa condominiale.entrambe le unità sono attualmente locate, garantendo una rendita immediata e offrendo un'interessante opportunità di investimento in posizione centrale.l'acquisto congiunto consente una gestione flessibile nel tempo:• mantenere entrambe le locazioni e beneficiare di doppia rendita;• unificare i locali per realizzare un'unica attività di maggiori dimensioni;• utilizzare una porzione e mantenere l'altra a reddito.la visibilità su strada, la centralità, l'assenza di spese condominiali e la presenza di posti auto privati - elemento raro per immobili commerciali in centro paese - rendono questa proposta particolarmente competitiva sul mercato locale.soluzione ideale per investitori orientati alla stabilità e alla redditività oppure per professionisti e imprenditori che desiderano in futuro uno spazio modulabile in posizione strategica.per informazioni su rendita attuale, contratti in essere e dettagli economici, contattaci.rif. B180-a




Caratteristiche immobile:
Codice inserzione: 1771990639
Rif. Annuncio: B180-A
Provincia: Padova
Comune: Torreglia
Superficie (Mq) : 80 Mq.
Tipo immobile: Negozi uffici capannoni
Anno costruzione/ristrutturazione: 1964
Posti auto scoperti: 1 posto auto

Costi:
Prezzo € 126.000


Efficienza energetica:
Classe energetica: B
Indice di prestazione energetica (EPgl): 256.21 kWh/mc annui
Riscaldamento: autonomo