home page > Annunci immobiliari in Italia > Veneto > Padova > Trebaseleghe > Case e ville indipendenti in vendita > Scheda immobile

Case e ville indipendenti in vendita a Trebaseleghe

COMPILA IL MODULO SOTTOSTANTE PER RICEVERE MAGGIORI INFORMAZIONI







Invia la richiesta ad altre agenzie
Accetto il trattamento dei miei dati



Agenzia immobiliare i portici di enrico favaro

Via cercariolo 2/a
30037 Scorzè (VE)

0413130140    +39 328 0064131    Riferimenti: Enrico Favaro

Trebaseleghe
Prezzo: € 400.000
A4
3
2
115
Piano terra
1



Descrizione:
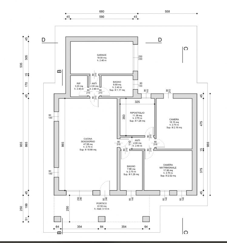
Sant'ambrogio,si propone in vendita a sant'ambrogio tra i comuni di scorzè e trebaseleghe introvabile casa singola in fase di costruzione.l'immobile si trova in una posizione tranquilla immersa nella campagna ma vicina a tutti i servizi nel raggio di 3 km.la casa realizzata tutta su un piano con tecniche di ultima generazione tali da ridurre al massimo i costi di gestione è circondata da un giardino di circa 800mq.l'ingresso all'immobile avviene da ampio portico con altezza media mt. 3,14 che permette accesso in ampia e luminosa zona giorno di 48mq., un disimpegno, un bagno e un ripostiglio completano la zona giorno.la zona notte si compone di una camera matrimoniale, due camere singole e un bagno. il garage è adiacente all'immobile e permette l'ingresso diretto in casa tramite un disimpegno. l'immobile è in fase di costruzione è quindi possibile personalizzare le finiture per renderlo unico in base alle esigenze personali. metrature: - cucina soggiorno 47,58 mq. - disimpegno 2,00 mq.- bagno 7,88 mq. - bagno 6,00 mq. - camera 17,06 mq. - camera 16,15 mq. - camera 11,38 mq. - disimpegno 2,00 mq.- ripostigli 3,20 mq. - garage 18,00 mq. - portico 22,50 mq.- scoperto esterno 800mq.prezzo: € 400.000,00rif. : 03.sambr.c1 sei interessato?hai trovato la casa che desideravi da tanto tempo, ma hai bisogno di un mutuo per far avverare il tuo sogno? l'agenzia immobiliare i portici ti offre la consulenza di professionisti del settore che ti aiuteranno a trovare il mutuo più accessibile in base alle tue disponibilità economiche, aiutandoti ad orientarti nella scelta tra mutuo a tasso fisso, variabile o misto e ad usufruire delle agevolazioni fiscali previste. Il tutto nella massima trasparenza e professionalità.per ulteriori informazioni non esitare a contattarci+39 :// (ve) 30037, via cercariolo 2/aseguici anche su facebook e instagram per rimanere sempre aggiornato sulle nostre proposte.si intende precisare che gli indirizzi presenti negli annunci non sono identificativi dell'ubicazione precisa dell'immobile,danno un riferimento solo generico della zona al cliente che ricerca, al fine di tutelare la privacy e riservatezza del venditore.




Caratteristiche immobile:
Codice inserzione: 1761537189
Rif. Annuncio: 03.SAMBR.C1
Provincia: Padova
Comune: Trebaseleghe
Zona: Sant'Ambrogio  
Superficie (Mq) : 115 Mq.
Tipo immobile: Case e ville indipendenti
Stato immobile: nuovo
Anno costruzione/ristrutturazione: 2024
Piano: Piano terra
Camere: 3
Garage: Singolo
Posti auto scoperti: 1 posto auto
Bagni: 2

Costi:
Prezzo € 400.000


Efficienza energetica:
Classe energetica: A4
Riscaldamento: autonomo a pavimento