home page > Annunci immobiliari in Italia > Veneto > Padova > Trebaseleghe > Negozi uffici capannoni in affitto > Scheda immobile

Negozi uffici capannoni in affitto a Trebaseleghe

COMPILA IL MODULO SOTTOSTANTE PER RICEVERE MAGGIORI INFORMAZIONI







Invia la richiesta ad altre agenzie
Accetto il trattamento dei miei dati



Immobiliare euro trading s.r.l.s.

Via terraglio 200
31022 Preganziol (TV)

042293338    Riferimenti: Yari Ghion

Trebaseleghe
Prezzo: info in agenzia
5360
1



Descrizione:
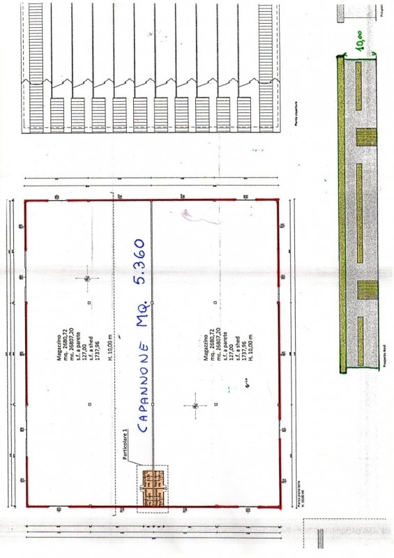
Affittasi trebaseleghe (pd) nuovo capannone da costruire di circa mq. 5.360 in zona industriale, con possibilità di costruzione sia produttivo, con carri ponte e sia logistico con baie di carico - scarico - il capannone sarà costruito con altezza di metri 10 sotto trave, con copertura a shed - con uffici, spogliatoi e vari servizi anche in base alla richiesta dell'eventuale locatore- area di oltre 10.000 mq. In buona posizione del comune.la tempistica per la costruzione e consegna con agibilità si stima in circa 12 - 15 mesi dalla sottoscrizione di un accordo fra le parti.




Caratteristiche immobile:
Codice inserzione: 1762400723
Rif. Annuncio: 2633
Provincia: Padova
Comune: Trebaseleghe
Superficie (Mq) : 5360 Mq.
Tipo immobile: Negozi uffici capannoni
Stato immobile: nuovo
Piano: 1

Costi:
Prezzo info in agenzia


Efficienza energetica:
Riscaldamento: autonomo