home page > Annunci immobiliari in Italia > Veneto > Padova > Veggiano > Terreni in vendita > Scheda immobile

Terreni in vendita a Veggiano

COMPILA IL MODULO SOTTOSTANTE PER RICEVERE MAGGIORI INFORMAZIONI







Invia la richiesta ad altre agenzie
Accetto il trattamento dei miei dati



Immobiliare orchidea s.r.l.

Via iv novembre 75
35035 Mestrino (PD)

0499001732    Riferimenti: Antonio Lovison

Veggiano
Prezzo: € 50.000
10880



Descrizione:
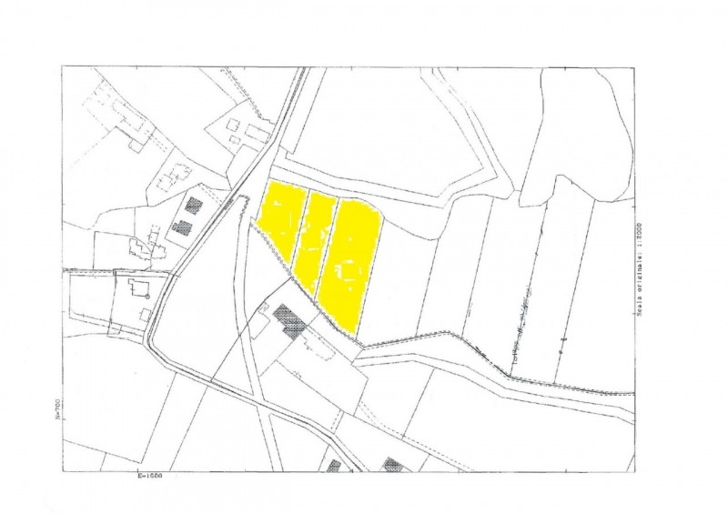
Nel cuore della campagna veneta, a pochi minuti dal centro di veggiano, proponiamo in vendita un appezzamento di terreno agricolo di circa 10.880 mq, pari a circa 3 campi padovani: una dimensione importante, sempre più difficile da trovare in una posizione cosù strategica.il terreno è inserito in un contesto di aperta campagna con alcune abitazioni limitrofe.l'accesso è indipendente, un dettaglio che valorizza l'autonomia della proprietà e ne facilita la gestione. E poi c'è la vista: aperta, ampia, suggestiva sui colli euganei. Un panorama che cambia con le stagioni, che accompagna il lavoro quotidiano nei campi e che rende questo terreno qualcosa di più di una semplice superficie agricola.dal punto di vista agronomico, il lotto si presenta di buona qualità, con irrigazione adeguata a garantire condizioni favorevoli alla coltivazione. Che tu voglia ampliare un'attività esistente o iniziare un nuovo progetto agricolo, qui trovi una base solida, fertile e ben posizionata.la destinazione agricola ne preserva l'identità e lo rende una scelta mirata per chi cerca un investimento concreto nel settore primario. opportunità di questo tipo, in una zona cosù richiesta, stanno diventando sempre più rare. La disponibilità è limitata e l'interesse per terreni agricoli ben posizionati è in costante crescita.chiamaci oggi stesso per fissare una visita: vieni a scoprire con i tuoi occhi il potenziale di questa proprietà. Potrebbe essere il terreno che aspettavi da tempo.vicinanze, montegalda, montegaldella, piazzola sul brenta, gazzo padovano, selvazzano dentro, mestrino, rubano, saccolongo, cervarese santa croce, abano terme, albignasego, torreglia, veggiano, vicenza e padova.




Caratteristiche immobile:
Codice inserzione: 1772508944
Rif. Annuncio: TR006
Provincia: Padova
Comune: Veggiano
Superficie (Mq) : 10880 Mq.
Tipo immobile: Terreni

Costi:
Prezzo € 50.000


Efficienza energetica:
Classe energetica: Immobile non soggetto all'obbligo di certificazione