home page > Annunci immobiliari in Italia > Veneto > Padova > Vigonza > appartamenti in vendita > Scheda immobile

Appartamento in vendita a Vigonza

COMPILA IL MODULO SOTTOSTANTE PER RICEVERE MAGGIORI INFORMAZIONI







Invia la richiesta ad altre agenzie
Accetto il trattamento dei miei dati



Consulta domu srl

Via vittorio emanuele orlando 09
35121 Padova

3792130851    Riferimenti: Emanuele Zampieri

Vigonza
Prezzo: € 299.000
3
3
140
Ultimo piano



Descrizione:
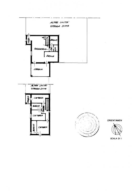
Scopri il tuo nuovo rifugio nel cuore di vigonza, nella tranquilla e ricercata zona di busa. Ti presentiamo un affascinante appartamento duplex in vendita, che si estende su una superficie generosa di 150 mq.palazzina di poche unità, dove la nostra possiede un pezzo di giardino esclusivo di circa 250 mq.questo immobile è perfetto per chi cerca spazio e comfort. Dall' ingresso al primo piano troverai un luminoso soggiorno open space con ampie finestre che rendono gli ambienti molto luminosi e la cucina abitabile moderna e funzionale. Sempre al piano primo la loggia abitabile di circa 25 mq ottima per pasti e relax in famiglia, un bagno cieco con doccia e un ripostiglio.salendo al secondo piano, scoprirai tre camere da letto a scalare ben arredate, ognuna dotata di armadi spaziosi e molta luce naturale. I due bagni, di cui uno in camera, completano il piano.negli ultimi 4 anni sono stati sostituiti climatizzatori e caldaia.come pertinenza troviamo un garage doppio di circa 45 mq.situato in una posizione strategica a pochi passi dai principali servizi come negozi, scuole e trasporti pubblici, questo appartamento rappresenta la scelta ideale per famiglie o professionisti alla ricerca di tranquillità senza rinunciare alla comodità della vita urbana.non perdere l'opportunità di visitare questa splendida proprietà! contatta subito la nostra agenzia per maggiori informazioni o per fissare un appuntamento.




Caratteristiche immobile:
Codice inserzione: 1775184192
Rif. Annuncio: 301-AC
Provincia: Padova
Comune: Vigonza
Zona: Busa  
Superficie (Mq) : 140 Mq.
Tipo immobile: Appartamento
Stato immobile: usato
Anno costruzione/ristrutturazione: 2000
Piano: Ultimo piano
Camere: 3
Garage: Doppio
Bagni: 3
Terrazze: 1

Costi:
Prezzo € 299.000


Efficienza energetica:
Riscaldamento: autonomo