home page > Annunci immobiliari in Italia > Veneto > Padova > Vigonza > Case e ville indipendenti in vendita > Scheda immobile

Case e ville indipendenti in vendita a Vigonza

COMPILA IL MODULO SOTTOSTANTE PER RICEVERE MAGGIORI INFORMAZIONI







Invia la richiesta ad altre agenzie
Accetto il trattamento dei miei dati



Db immobiliare di daniele benetollo

Via san marco 125
35121 Padova

049629238    Riferimenti: Daniele Benetollo

Vigonza
Prezzo: € 190.000
G
3
3
130
1



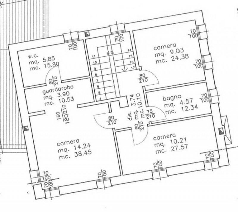
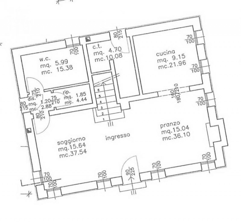
Descrizione:
Riferimento per l'agenzia vr0304 vigonza zona pionca. Porzione di bifamiliare al grezzo su 2 piani composta da: ingresso, soggiorno, cucina, 3 camere, guardaroba, 3 bagni, ripostiglio, c.t., ampio porticato per posto auto coperto. Ampio scoperto privato mq 1.200 circa. Allacciamento fognatura fatto, intonaci esterni, casse morte, davanzali. Muri esterni da 40 cm. Prezzo di vendita euro 190.000




Caratteristiche immobile:
Codice inserzione: 1771990877
Rif. Annuncio: VR0304
Provincia: Padova
Comune: Vigonza
Zona: Pionca  
Superficie (Mq) : 130 Mq.
Tipo immobile: Case e ville indipendenti
Anno costruzione/ristrutturazione: 2004
Camere: 3
Posti auto scoperti: 1 posto auto
Bagni: 3

Costi:
Prezzo € 190.000


Efficienza energetica:
Classe energetica: G
Indice di prestazione energetica (EPgl): 200.11 kWh/mq annui