Descrizione:
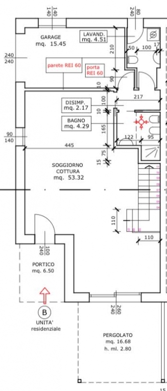
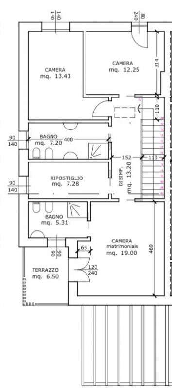
Design, spazio e classe a4 la casa che fa la differenzaa perarolo di vigonza, in quartiere tranquillo e verde, proponiamo nuova porzione di bifamiliare dal forte impatto moderno, 215 mq di comfort e tecnologia immersi in un giardino privato di 300 mq. colpisce subito la spettacolare zona living open-space di 55 mq, inondata di luce grazie alle grandi vetrate: uno spazio elegante e accogliente.cucina abitabile separabile, bagno, lavanderia e garage completano il piano terra.al piano superiore troviamo tre camere ampie (matrimoniale + 2 doppie) e due bagni raffinati, pensati per il massimo comfort della famiglia.giardino esclusivo di 300 mq, pergolato ideale per cene estive, vialetto pavimentato con posti auto interni, basculante e cancello motorizzati: indipendenza e praticità garantite.âœ" impianto fotovoltaico da 9 kwâœ" riscaldamento a pavimento con pompa di calore immergasâœ" impianto elettrico predisposto per domoticaâœ" a/c canalizzata predisposta per gestione smartâœ" serramenti legno/alluminio con triplo vetro e doppia cameraâœ" tapparelle e frangisole motorizzati nella zona giornoâœ" predisposizione allarmeâœ" piatti doccia basso profilo antiscivolouna casa moderna, efficiente e pronta a farti vivere ogni giorno al massimo.