049663033 049663309 3351856220 Riferimenti: Daniele Barbara
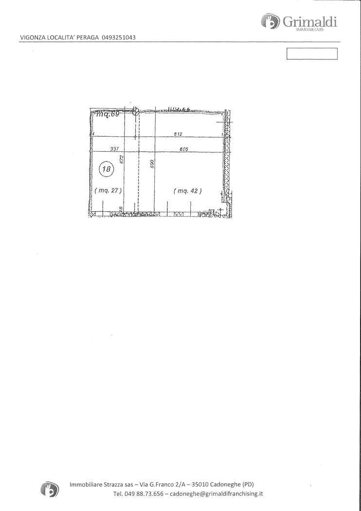
 69
						
						69					
						
						Descrizione:
Vigonza localita' peraga. Proponiamo in vendita esclusiva nella zona artigianale di peraga, un magazzino al piano interrato di 69 mq con allarme.grimaldi immobiliare via g. Franco 2/a - 35010 mejaniga di cadoneghe (pd) fisso: https://grimaldi.casa/ chiamaci subito per maggiori informazioni!					
| Codice inserzione: | 1747006608 | 
| Rif. Annuncio: | 0493251043VCG | 
| Provincia: | Padova | 
| Comune: | Vigonza | 
| Superficie (Mq) : | 69 Mq. | 
| Tipo immobile: | Garage | 
| Anno costruzione/ristrutturazione: | 2003 | 
| Prezzo | € 54.000 | 
| Indice di prestazione energetica (EPgl): | 169.83 kWh/mq annui |