home page > Annunci immobiliari in Italia > Veneto > Padova > Vigonza > Negozi uffici capannoni in affitto > Scheda immobile

Negozi uffici capannoni in affitto a Vigonza

COMPILA IL MODULO SOTTOSTANTE PER RICEVERE MAGGIORI INFORMAZIONI







Invia la richiesta ad altre agenzie
Accetto il trattamento dei miei dati



Profumo di casa immobiliare srl

Via venezia 52/g
35010 Vigonza (PD)

0497294884    Riferimenti: INFO AGENZIA

Vigonza
Prezzo: € 3.500
C
2
370
Piano terra



Descrizione:
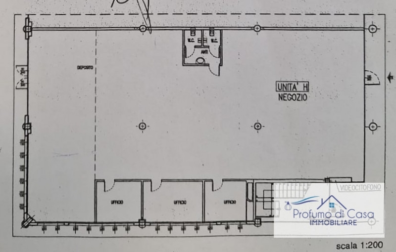
Vigonza loc. Capriccio - in uno stabile moderno vicino ai principali collegamenti e servizi, proponiamo splendido negozio di 370 metri quadri in locazione, sviluppato interamente al piano terra e con quattro vetrine su strada principale di forte passaggio. Area esterna con circa 3000 metri quadri di parcheggio.si sviluppa in un unico ambiente openspace e personalizzabile in base alle proprie necessità, con tre locali aggiuntivi ad uso ufficio e due bagni con antibagno.la soluzione offre un'ottima visibilità per la posizione e confina con molte altre attività commerciali ad elevata frequentazione già presenti nello stabile.canone mensile euro 3.500,00 + iva.spese condominiali euro 150 al mese. paesi limitrofi ponte di brenta, vigonza, perarolo, busa, noventa padovana, stra, fiesso d'artico




Caratteristiche immobile:
Codice inserzione: 1772769196
Rif. Annuncio: 2026-13
Provincia: Padova
Comune: Vigonza
Zona: Capriccio  
Superficie (Mq) : 370 Mq.
Tipo immobile: Negozi uffici capannoni
Stato immobile: usato
Anno costruzione/ristrutturazione: 2006
Piano: Piano terra
Bagni: 2

Costi:
Prezzo € 3.500


Efficienza energetica:
Classe energetica: C
Indice di prestazione energetica (EPgl): 125.05 kWh/mc annui
Riscaldamento: autonomo