home page > Annunci immobiliari in Italia > Veneto > Rovigo > Ariano nel Polesine > Negozi uffici capannoni in vendita > Scheda immobile

Negozi uffici capannoni in vendita a Ariano nel Polesine

COMPILA IL MODULO SOTTOSTANTE PER RICEVERE MAGGIORI INFORMAZIONI







Invia la richiesta ad altre agenzie
Accetto il trattamento dei miei dati



Immobili all'asta

Viale sabotino 4
20121 Milano

0280888267    Riferimenti: Ivano De Natale

Ariano nel Polesine
Prezzo: € 12.480
F
1
268
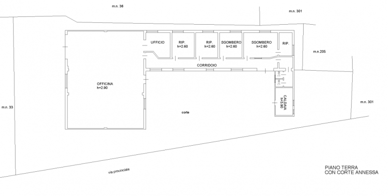
Piano terra



Descrizione:
Laboratorio in asta, via provinciale, ariano nel p. (ro)si propone il diritto di piena proprietà su immobile ad uso commerciale sito in loc. Crociara, via provinciale, 14, nel comune di ariano nel polesine (ro).nello specifico si tratta di un laboratorio al piano terra, composto da:- officina- corridoio- ufficio- n. 3 ripostigli- n. 2 locali di sgombero- disimpegno- wc- caldaia.l'unità abitativa risulta avere una superficie di circa 268mq.dati catastalil'unità immobiliare risulta identificata al catasto fabbricati come segue:foglio 11 mapp.le 34, categoria c/3, classe 1, p.t., mq 275,00, r.c.: € 610,71.chi siamoimmobiliallasta.it aiuta le persone a comprare casa all'asta e migliorare la qualità della loro vita senza correre rischi, grazie ad una piattaforma specializzata in aste immobiliari sviluppata intorno alle vere esigenze di chi cerca casa all'asta e ad un team di 30 professionisti esperti dedicato, che ti guida passo passo in un acquisto sicuro e certificato da una tripla garanzia sull'immobile e sul servizio. a differenza delle agenzie troverai: + varietà: gestiamo migliaia di immobili ogni mese+ tranquillità: tripla garanzia che ti tutela da ogni rischio sull'acquistoalcuni risultati oggettivi nell'ultimo anno e mezzo:- 8.600 immobili gestiti- +500 clienti portati all'asta - +200 case aggiudicate, per un valore totale di 15 milionicontattaci subito per parlare con uno dei nostri consulenti che ti aiuterà a trovare la tua casa all'asta senza correre rischi.




Caratteristiche immobile:
Codice inserzione: 1776134705
Rif. Annuncio: ST12124
Provincia: Rovigo
Comune: Ariano nel Polesine
Zona: Crociara  
Superficie (Mq) : 268 Mq.
Tipo immobile: Negozi uffici capannoni
Stato immobile: usato
Anno costruzione/ristrutturazione: 1960
Piano: Piano terra
Bagni: 1

Costi:
Prezzo € 12.480


Efficienza energetica:
Classe energetica: F
Indice di prestazione energetica (EPgl): 175 kWh/mc annui