home page > Annunci immobiliari in Italia > Veneto > Rovigo > Occhiobello > Negozi uffici capannoni in vendita > Scheda immobile

Negozi uffici capannoni in vendita a Occhiobello

COMPILA IL MODULO SOTTOSTANTE PER RICEVERE MAGGIORI INFORMAZIONI







Invia la richiesta ad altre agenzie
Accetto il trattamento dei miei dati



Serim casa

Via zappaterra 16
44121 Ferrara

3357237753

Occhiobello
Prezzo: € 330.000
2467



Descrizione:
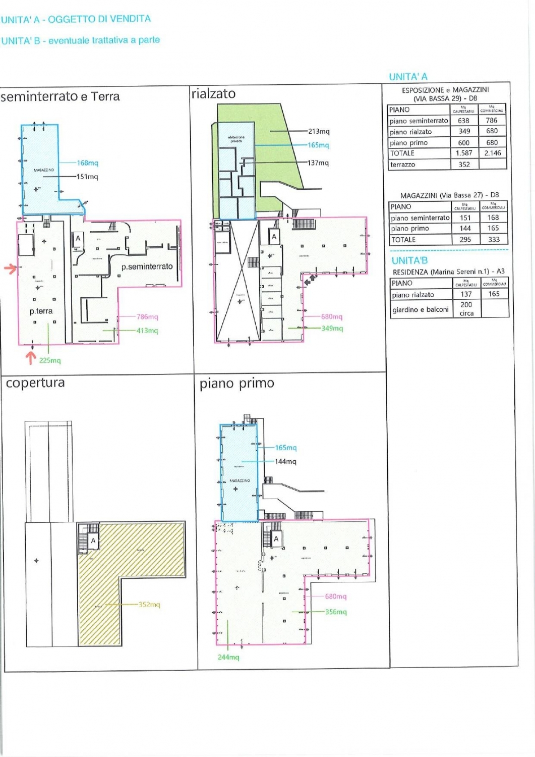
Santa maria maddalena, a brevissima distanza da ferrara ed in posizione comoda per raggiungere la città di rovigo, proponiamo in vendita capannone commerciale di quasi 2.500 mq. (accatastato d/8) ideale per attività espositiva, organizzato internamente su due livelli oltre a piano interrato.dotato di grandi altezze di circa 4 mt. E due portoni di accesso scorrevoli, l'immobile si presenta in ottimo stato di manutenzione.servito da capiente montacarichi (2.30 x 3.50) con entrata/uscita su tutti i livelli interni, impianto di riscaldamento canalizzato ad aria e struttura a pilastri in cemento armato; impreziosito da ampie vetrate antisfondamento al piano rialzato e primo protette da frangisole in alluminio.impianto elettrico e di riscaldamento a norma con differenziali su ogni piano.sempre al piano rialzato dispone di cinque uffici con pareti vetrate già approntati e pronti all'uso.la copertura piana di circa 350 mq. In ottimo stato, funge anche da grande terrazza.pavimentazione in gres su tutti i piani, sulla quale è stato sovrapposto laminato a doghe effetto legno; tramezzature interne in cartongesso che possono essere rimosse a seconda delle esigenze.sul fronte del fabbricato, un ampio piazzale carrabile con pavimentazione in autobloccante (circa 20 posti auto).l'immobile con la sua vasta metratura si presta a diversi tipi di utilizzi: - poliambulatori- cambio destinazione d'uso in residenziale per realizzazione di più unità abitativeprezzo d'occasione per coloro che sono alla ricerca di un grande spazio espositivo all'interno di centro abitato e comodissimo alle principali vie di comunicazione; posizione invidiabile con ampia visibilità, in strada di forte passaggio. L'immobile è disponibile anche alla locazione (3.000€/mese).inoltre, sempre della stessa proprietà adiacente il capannone, vi è la possibilità di acquisto con prezzo a parte di un' abitazione residenziale di circa 180 mq, distribuita tutta al piano rialzato con scoperto privato.pertinenziale alla casa un magazzino di oltre 160 mq. Ad uso garage ed ulteriore ampio locale show room al piano superiore di altri 180 mq..




Caratteristiche immobile:
Codice inserzione: 1738129008
Rif. Annuncio: 707
Provincia: Rovigo
Comune: Occhiobello
Superficie (Mq) : 2467 Mq.
Tipo immobile: Negozi uffici capannoni
Stato immobile: recente
Arredato:
Stato al rogito: Libero

Costi:
Prezzo € 330.000


Efficienza energetica:
Riscaldamento: autonomo
Tipologia riscaldamento: energia elettrica