home page > Annunci immobiliari in Italia > Veneto > Venezia > Campolongo Maggiore > appartamenti in vendita > Scheda immobile

Appartamento in vendita a Campolongo Maggiore

COMPILA IL MODULO SOTTOSTANTE PER RICEVERE MAGGIORI INFORMAZIONI







Invia la richiesta ad altre agenzie
Accetto il trattamento dei miei dati



La mia casa snc di carubia gianluca & c

Via romea 65/i
35020 Legnaro (PD)

0498830191...0498830195

Campolongo Maggiore
Prezzo: € 240.000
A4
2
2
130
Piano terra



Descrizione:
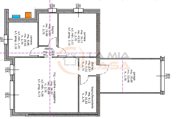
Campolongo centro: appartamento situato al piano terra con scoperto di circa 130 mq dispone di zona giorno di 35 mq. Con accesso al giardino, camera matrimoniale di 16 mq con portafinestra camera singola anch'essa con porta finestra con accesso esterno. Due bagni uno finestrato e uno cieco. Garage di proprietà al piano terra collegato direttamente con l'interno. L'utilizzo di finiture moderne di qualità e di materiali italiani certificati permettono uno standard abitativo molto alto. Complesso residenziale di nuova costruzione situato in pieno centro paese, adiacente a tutti i servizi primari tra cui asilo, scuola, palestra, posta e supermercati restando connesso attraverso la viabilità principale agli svincoli che portano a padova e piove di sacco. Consegna fine 2026.le abitazioni sono provviste di:- riscaldamento a pavimento- impianto di riscaldamento/raffrescamento in pompa di calore con accumulo acqua calda sanitaria- impianto fotovoltaico con potenza di 3.15kw- installazione impianto di allarme- impianto di ventilazione meccanica - impianto di condizionamento samsung con sistema dual split inverter- isolamento termico e acustico con cappotto murario da 10 cm- serramenti ad elevata prestazione termo-acusticaricordiamo a tutti i clienti che la nostra agenzia e' a vostra disposizione per offrirvi gratuitamente una consulenza e valutazione commerciale del vostro immobile.il presente annuncio è indicativo e non costituisce vincolo o presupposto contrattuale. Tutte le misure riportate devono considerarsi indicative.n.b. Per motivi di privacy, l'indirizzo e il puntatore nella mappa sono indicativi e non corrispondono all'ubicazione esatta dell'immobile.




Caratteristiche immobile:
Codice inserzione: 1768277438
Rif. Annuncio: CM039
Provincia: Venezia
Comune: Campolongo Maggiore
Superficie (Mq) : 130 Mq.
Tipo immobile: Appartamento
Stato immobile: nuovo
Anno costruzione/ristrutturazione: 2025
Piano: Piano terra
Camere: 2
Garage: Singolo
Bagni: 2 + lavanderia

Costi:
Prezzo € 240.000


Efficienza energetica:
Classe energetica: A4