home page > Annunci immobiliari in Italia > Veneto > Venezia > Camponogara > Attici in vendita > Scheda immobile

Attici in vendita a Camponogara

COMPILA IL MODULO SOTTOSTANTE PER RICEVERE MAGGIORI INFORMAZIONI







Invia la richiesta ad altre agenzie
Accetto il trattamento dei miei dati



Veneto case foss?

Via roma 1/3
30020 Fossalta di Piave (VE)

0494906465

Camponogara
Prezzo: € 420.000
4
2
350
3



Descrizione:
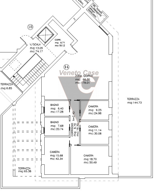
Camponogara - attico all'ultimo piano su nuova costruzioneproponiamo in vendita un magnifico attico dalle generose dimensionila superficie abitabile si estende su circa 350 mq, l'attico è composto da un ampio open-space soggiorno-cucina che supera i 60 mq, la zona notte comprende 4 camere di cui 2 matrimoniali e 2 bagni.all'esterno, questo attico vanta due terrazzi privati di 205 mq complessivi; lo spazio ideale dove godere pranzi all'aperto durante le belle giornate o semplicemente rilassarsi ammirando i tramonti in totale privacy.classe energetica a4 - rif 318-fcal - euro 420.000veneto case fosso'via roma, 1tel: vicinanze di fossò fiesso dolo strà barbariga vigonza sandon camponogara noventa noventana riviera del brenta liettoli piove campolongo cazzago pianiga campagna lupia bojon




Caratteristiche immobile:
Codice inserzione: 1769767856
Rif. Annuncio: 318-FCAL
Provincia: Venezia
Comune: Camponogara
Superficie (Mq) : 350 Mq.
Tipo immobile: Attici
Stato immobile: nuovo
Anno costruzione/ristrutturazione: 2024
Piano: 3
Camere: 4
Garage: Singolo
Bagni: 2
Terrazze: 2

Costi:
Prezzo € 420.000


Efficienza energetica:
Riscaldamento: autonomo