home page > Annunci immobiliari in Italia > Veneto > Venezia > Camponogara > Negozi uffici capannoni in vendita > Scheda immobile

Negozi uffici capannoni in vendita a Camponogara

COMPILA IL MODULO SOTTOSTANTE PER RICEVERE MAGGIORI INFORMAZIONI







Invia la richiesta ad altre agenzie
Accetto il trattamento dei miei dati



Futuram srl

Via brescia 31
36040 Torri di Quartesolo (VI)

0444310220    Riferimenti: Federico Carli

Camponogara
Prezzo: € 1.200.000
1200
Piano terra



Descrizione:
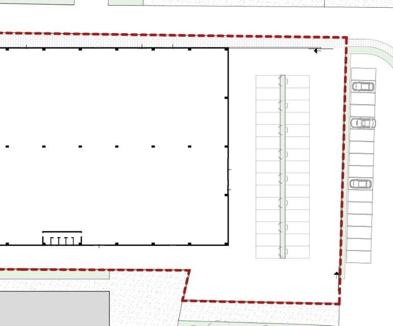
Rif: 051nm - camponogara (ve) - per info propongo in vendita un capannone di 1200 mq a camponogara di venezia- consegna a fine 2026 al grezzo avanzato - 5 metri di altezza- 750 mq di scoperto- possibilità di raddoppiare la metraturail prezzo e' da intendersi al netto di ivaper privacy l'indirizzo riportato su mappa non corrisponde alla reale ubicazione dell'immobile.la presente agenzia immobiliare declina qualsiasi responsabilità in ordine alle informazioni riportate in questo annuncio in quanto le stesse sono da intendersi indicative. La scrivente non assume alcuna responsabilità in ordine all'attualità delle stesse, nonché ad eventuali omissioni o inesattezze. Pertanto le informazioni riportate nel presente annuncio non costituiscono vincolo contrattuale tra le parti.




Caratteristiche immobile:
Codice inserzione: 1750646787
Rif. Annuncio: 051NM
Provincia: Venezia
Comune: Camponogara
Superficie (Mq) : 1200 Mq.
Tipo immobile: Negozi uffici capannoni
Stato immobile: usato da riattare
Anno costruzione/ristrutturazione: 1960
Piano: Piano terra

Costi:
Prezzo € 1.200.000


Efficienza energetica:
Classe energetica: Immobile non soggetto all'obbligo di certificazione