home page > Annunci immobiliari in Italia > Veneto > Venezia > Caorle > appartamenti in vendita > Scheda immobile

Appartamento in vendita a Caorle

COMPILA IL MODULO SOTTOSTANTE PER RICEVERE MAGGIORI INFORMAZIONI







Invia la richiesta ad altre agenzie
Accetto il trattamento dei miei dati



Asteaffari.com

Viale g. E l. Olivi 38
31100 Treviso

04221781118    Riferimenti: Stefano Dalto

Caorle
Prezzo: € 47.325
F
1
1
46
3



Descrizione:
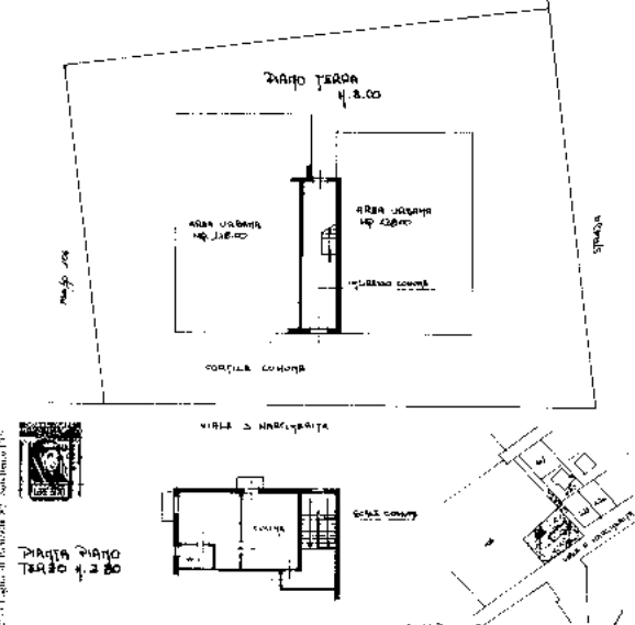
Rif. A.a vendita all'asta - appartamento al 3° piano in data 02 dicembre 2025descrizione: trattasi di un appartamento sito al 3° piano di un edificio condominiale a 3 piani fuori terra denominato 'condominio piave' nel comune di caorle (ve) viale santa margherita n.12. L'unità immobiliare, della superficie commerciale complessiva di mq.46, è costituita da ingresso-cucina-pranzo, camera, bagno, 2 terrazzini.l'immobile viene venduto tramite asta giudiziaria, ed il prezzo indicato si riferisce al prezzo minimo accettato per la partecipazione all'asta.aste-affari fornisce un servizio di assistenza e consulenza tecnica, legale, fiscale e finanziaria su acquisti all'asta e affari immobiliari, al fine di rendere più facile e sicuro l'acquisto di un immobile proveniente dal mercato giudiziario oppure da occasioni presenti sul mercato immobiliare.analisi di fattibilità, tecnica, burocratica, finanziaria, legale, esame problematiche e vincoli, conteggio costi accessori ed occulti, assistenza in tutte le fasi della procedura fino alla consegna delle chiavi dell'immobile.l'acquisto può essere finanziato tramite mutuo, e, ove possibile anche in pre-asta tramite procedura di saldo-stralcio.prezzo minimo base asta : da euro 47.325,00per info aggiuntive, prenotazione visione, consulenza ed assistenza su asta :studio di consulenza : 'aste-affari.com'info: un debitore ? chiamaci ! abbiamo soluzioni personalizzate anche per te.




Caratteristiche immobile:
Codice inserzione: 1761537223
Rif. Annuncio: A.A.3598-187
Provincia: Venezia
Comune: Caorle
Superficie (Mq) : 46 Mq.
Tipo immobile: Appartamento
Anno costruzione/ristrutturazione: 1960
Piano: 3
Camere: 1
Arredato:
Tipologia giardino : Condominiale
Bagni: 1
Terrazze: 2

Costi:
Prezzo € 47.325


Efficienza energetica:
Classe energetica: F
Riscaldamento: autonomo