home page > Annunci immobiliari in Italia > Veneto > Venezia > Cavallino-Treporti > Case e ville a schiera in vendita > Scheda immobile

Case e ville a schiera in vendita a Cavallino-Treporti

COMPILA IL MODULO SOTTOSTANTE PER RICEVERE MAGGIORI INFORMAZIONI







Invia la richiesta ad altre agenzie
Accetto il trattamento dei miei dati



Multiservice immobiliare

Via fausta, 154
30013 Cavallino-Treporti (VE)

0415301558    0415301558

Cavallino-Treporti
Prezzo: € 335.000
3
2
120
Ultimo piano



Descrizione:
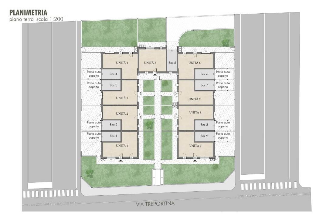
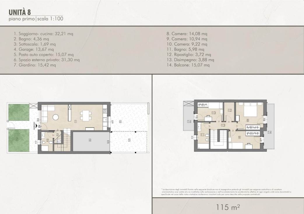
Ultime villette ancora disponibili! ti presentiamo una splendida villetta in classe energetica a4, in prossima consegna, perfetta per chi cerca comfort e modernità. Questa abitazione si sviluppa su due livelli e offre un ampio soggiorno di oltre 30 mq, ideale per trascorrere momenti di relax e convivialità con la famiglia e gli amici. La cucina a vista rende l'ambiente ancora più luminoso e accogliente.la villetta è composta da una comoda zona giorno, un disimpegno, due bagni dotati di finestra, tre camere da letto e una stanza guardaroba o ripostiglio, perfetta per ottimizzare gli spazi. Gli amanti degli spazi esterni apprezzeranno le due terrazze, cosù come il giardinetto sono perfetti per godere di piacevoli momenti all'aperto. Inoltre, la proprietà dispone di un garage adiacente e collegato internamente e di due posti auto scoperti privati.non perdere l'occasione di vivere in una delle ultime villette disponibili, un'opportunità unica per investire nel tuo futuro.due cose importantissime:la nostra agenzia pensa a te e ti regala la provvigione, facendoti risparmiare eu. 12.000,00, inoltre potrai godere del sismabonus che ti porterà a detrarre fino ad altri eu. 48.000,00 in 10 anni...praticamente una villetta ad un prezzo di un appartamento! contattaci per maggiori informazioni e per prenotare una visita! eu. 335.000,00 classe energetica: a4




Caratteristiche immobile:
Codice inserzione: 1764219094
Rif. Annuncio: LA FENICE
Provincia: Venezia
Comune: Cavallino-Treporti
Superficie (Mq) : 120 Mq.
Tipo immobile: Case e ville a schiera
Stato immobile: nuovo
Piano: Ultimo piano
Camere: 3
Garage: Singolo
Bagni: 2

Costi:
Prezzo € 335.000


Efficienza energetica: