home page > Annunci immobiliari in Italia > Veneto > Venezia > Cavallino-Treporti > Case e ville a schiera in vendita > Scheda immobile

Case e ville a schiera in vendita a Cavallino-Treporti

COMPILA IL MODULO SOTTOSTANTE PER RICEVERE MAGGIORI INFORMAZIONI







Invia la richiesta ad altre agenzie
Accetto il trattamento dei miei dati



Asteaffari.com

Viale g. E l. Olivi 38
31100 Treviso

04221781118    Riferimenti: Stefano Dalto

Cavallino-Treporti
Prezzo: € 114.000
F
2
2
80
1
1



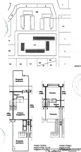
Descrizione:
Rif. A.a.92-24vendita all'asta - schiera centrale su due piani in data 14 maggio 2026descrizione: trattasi di un'abitazione sviluppata su due livelli, con area scoperta, facente parte del residence sol leone con a servizio parco e piscina condominiale, in discreto stato di manutenzione, collocato nelle immediate vicinanze della spiaggia del faro. L'unità immobiliare, della superficie commerciale complessiva di ca.80 mq., è composta da un soggiorno al piano rialzato in continuità alla terrazza privata, con un angolo cottura ed il bagno posto nel retro della cucina; il piano superiore, accessibile tramite scala interna, è costituito da due camere con disimpegno e bagnetto. Completa la proprietà un posto auto scoperto.prezzo minimo base asta : da euro 114.000,00l'immobile viene venduto tramite asta giudiziaria, ed il prezzo indicato si riferisce al prezzo minimo accettato per la partecipazione all'asta.aste-affari fornisce un servizio di assistenza e consulenza tecnica, legale, fiscale e finanziaria su acquisti all'asta e affari immobiliari, al fine di rendere più facile e sicuro l'acquisto di un immobile proveniente dal mercato giudiziario oppure da occasioni presenti sul mercato immobiliare.analisi di fattibilità, tecnica, burocratica, finanziaria, legale, esame problematiche e vincoli, conteggio costi accessori ed occulti, assistenza in tutte le fasi della procedura fino alla consegna delle chiavi dell'immobile.l'acquisto può essere finanziato tramite mutuo, e, ove possibile anche in pre-asta tramite procedura di saldo-stralcio. per info aggiuntive, prenotazione visione, consulenza ed assistenza su asta : studio di consulenza : 'aste-affari.com' info: sei un debitore ? chiamaci ! abbiamo soluzioni personalizzate anche per te.




Caratteristiche immobile:
Codice inserzione: 1773805255
Rif. Annuncio: A.A. 92-24
Provincia: Venezia
Comune: Cavallino-Treporti
Superficie (Mq) : 80 Mq.
Tipo immobile: Case e ville a schiera
Stato immobile: usato
Anno costruzione/ristrutturazione: 1995
Piano: 1
Camere: 2
Arredato:
Posti auto scoperti: 1 posto auto
Bagni: 2
Terrazze: 1

Costi:
Prezzo € 114.000


Efficienza energetica:
Classe energetica: F
Riscaldamento: autonomo