home page > Annunci immobiliari in Italia > Veneto > Venezia > Ceggia > Case e ville indipendenti in vendita > Scheda immobile

Case e ville indipendenti in vendita a Ceggia

COMPILA IL MODULO SOTTOSTANTE PER RICEVERE MAGGIORI INFORMAZIONI







Invia la richiesta ad altre agenzie
Accetto il trattamento dei miei dati



Asteaffari.com

Viale g. E l. Olivi 38
31100 Treviso

04221781118    Riferimenti: Stefano Dalto

Ceggia
Prezzo: € 358.500
3
385
1



Descrizione:
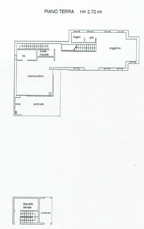
Rif. A.a.315-211 vendita all'asta - villino in data 14 novembre 2025 descrizione immobili : immobile residenziale unifamiliare sviluppato su 2 livelli fuori terra ed 1 interrato con ampio scoperto esclusivo di 4.460 mq, garage su manufatto staccato. Composto al piano terra da ingresso-ampio soggiorno, cucina-pranzo, bagno e antibagno, ripostiglio, locale tecnico, porticato e deposito su accessorio staccato; al piano primo ampia camera con bagno e ballatoio sul soggiorno, vano sottotetto di 67 mq (3 camere, 2 bagni); al piano seminterrato vari locali uso ripostiglio (spogliatoio, sauna, bagno), cantina. Disimpegno, locale tecnico, ampio patio rivestito in legno con piscina di forma allungata. prezzo minimo base asta : da euro 358.500,00 per info aggiuntive, prenotazione visione, consulenza ed assistenza su asta :studio di consulenza : 'aste-affari.com'info: un debitore ? chiamaci ! abbiamo soluzioni personalizzate anche per te.




Caratteristiche immobile:
Codice inserzione: 1759114112
Rif. Annuncio: A.A.315-211
Provincia: Venezia
Comune: Ceggia
Superficie (Mq) : 385 Mq.
Tipo immobile: Case e ville indipendenti
Stato immobile: usato
Anno costruzione/ristrutturazione: 2009
Piano: 1
Camere: 3
Arredato:
Garage: Doppio

Costi:
Prezzo € 358.500


Efficienza energetica: